Nous suivre
0
Réf : 4046Z

Charmant 2 pièces à Saint-Ouen, à deux pas de Paris – Idéal investissement

Saint-Ouen-sur-Seine (93400)
175 000 €

A propos de ce bien

Le Cabinet BR Immobilier a le plaisir de vous présenter ce joli 2 pièces, idéalement situé rue de la Gaîté à Saint-Ouen (93400), dans un quartier calme et recherché, à proximité immédiate de Paris.

L'emplacement constitue l'un des principaux atouts de ce bien : à seulement 3 minutes à pied du métro Garibaldi (ligne 13), vous profitez d'un accès rapide et direct à la capitale, ainsi que d'une proximité immédiate avec les commerces, les transports et l'ensemble des commodités du quotidien. Saint-Ouen, en plein essor, offre un cadre de vie à la fois dynamique et résidentiel, apprécié tant des familles que des investisseurs.

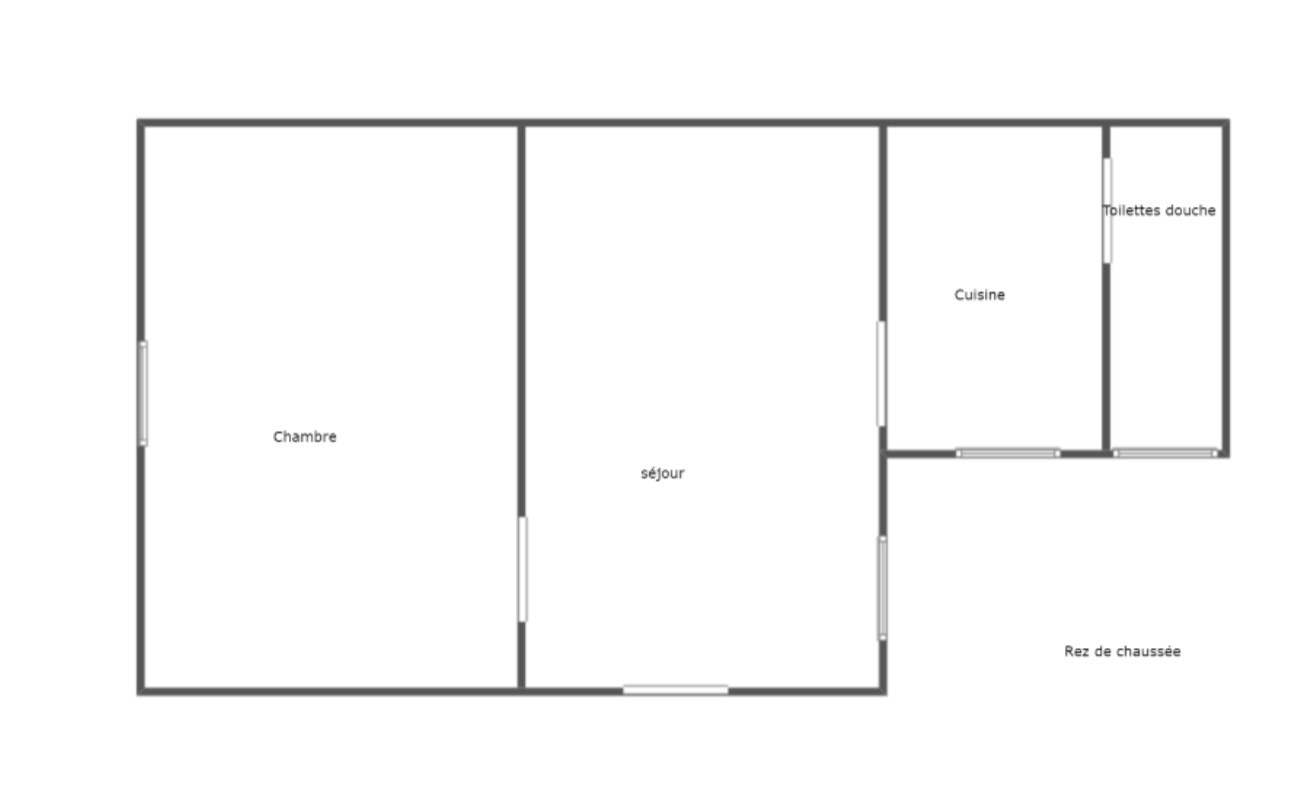
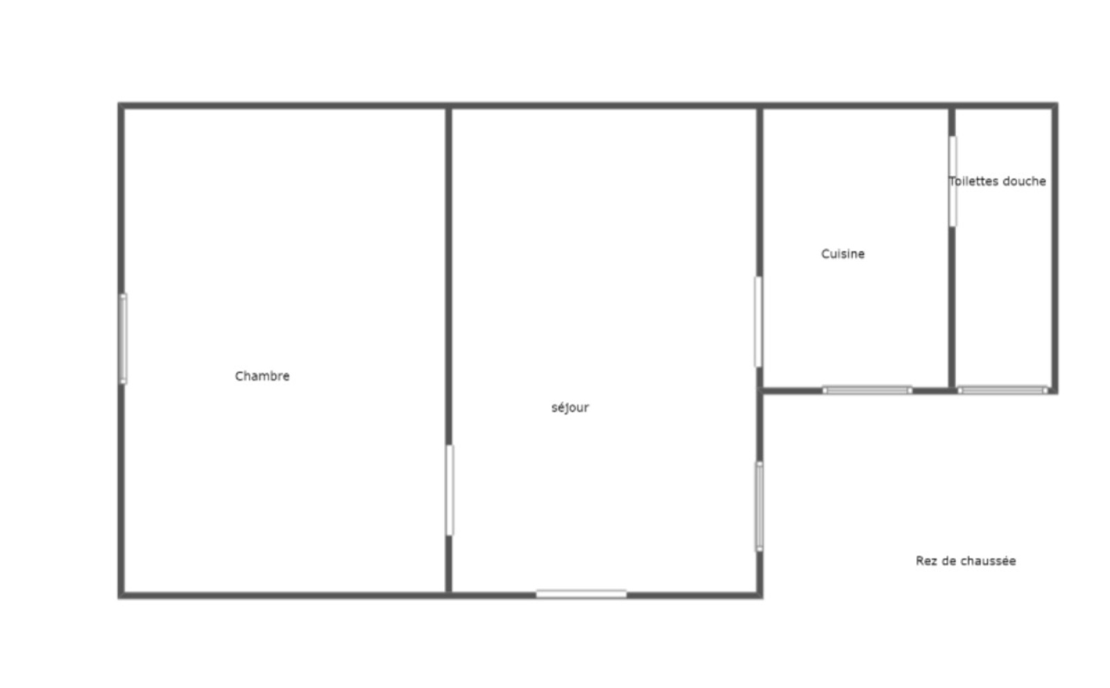
Cet appartement séduit par son agencement fonctionnel et son atmosphère chaleureuse. Il se compose d'une chambre confortable, d'un salon agréable, d'une cuisine ainsi que d'une salle d'eau, pour une configuration parfaitement adaptée à une première acquisition ou à un projet d'investissement locatif.

La copropriété affiche des charges particulièrement maîtrisées de 68 € par mois seulement, comprenant notamment l'eau chaude, l'entretien des parties communes et le chauffage — un véritable atout pour la rentabilité du bien.

Par son emplacement privilégié à deux pas de Paris, son calme, son quartier dynamique et son format idéal, ce 2 pièces représente une belle opportunité à saisir, que ce soit pour un premier achat ou pour un investissement patrimonial offrant une rentabilité attractive dans un secteur à forte demande.

DPE : D

Pour toute information complémentaire ou pour organiser une visite, n'hésitez pas à me contacter directement.

 

découvrir le bien

Descriptif du bien

TRAD_PAMPERO_Caracteristique Valeurs
Code postal 93400
Surface habitable (m²) 29 m²
Nombre de chambre(s) 1
Nombre de pièces 2
Ascenseur OUI
TRAD_PAMPERO_Caracteristique Valeurs
Interphone OUI
Visiophone OUI
Exposition Sud
TRAD_PAMPERO_Caracteristique Valeurs
Copropriété NON
TRAD_PAMPERO_Caracteristique Valeurs
Prix de vente honoraires TTC inclus 175 000 €
DPE GES
  • Commerces et santé
  • Loisirs
  • Ecoles
  • Transports
  • Pratique
Ce bien vous est proposé par
Ce bien vous intéresse ?
Fieldset par défaut
Fieldset par défaut
Validation

* Champs obligatoires

Contacter l'agence
Validation
Les informations recueillies sur ce formulaire sont enregistrées dans un fichier informatisé par La Boite Immo agissant comme Sous-traitant du traitement pour la gestion de la clientèle/prospects de l'Agence / du Réseau qui reste Responsable du Traitement de vos Données personnelles. La base légale du traitement repose sur l'intérêt légitime de l'Agence / du Réseau. Elles sont conservées jusqu'à demande de suppression et sont destinées à l'Agence / au Réseau. Conformément à la loi « informatique et libertés », vous disposez des droits d’accès, de rectification, d’effacement, d’opposition, de limitation et de portabilité de vos données. Vous pouvez retirer votre consentement à tout moment en contactant directement l’Agence / Le Réseau. Consultez le site https://cnil.fr/fr pour plus d’informations sur vos droits. Si vous estimez, après avoir contacté l'Agence / le Réseau, que vos droits « Informatique et Libertés » ne sont pas respectés, vous pouvez adresser une réclamation à la CNIL. Nous vous informons de l’existence de la liste d'opposition au démarchage téléphonique « Bloctel », sur laquelle vous pouvez vous inscrire ici : https://www.bloctel.gouv.fr Dans le cadre de la protection des Données personnelles, nous vous invitons à ne pas inscrire de Données sensibles dans le champ de saisie libre.
Ce site est protégé par reCAPTCHA, les Politiques de Confidentialité et les Conditions d'Utilisation de Google s'appliquent.