Nous suivre
0
Réf : 3306E
Exclusif

CALME / TRES BON ETAT / REFAT À NEUF

Charenton-le-Pont (94220)
338 000 €

A propos de ce bien

Charenton – Quartier Liberté / Gravelle – Face au Bois de Vincennes

Dans une petite copropriété bien entretenue, des années 70, calme, sécurisée, avec gardien, et idéalement située à proximité des commerces, des écoles et des transports (Tramway, Bus, Métro Charenton – Liberté ligne 8)

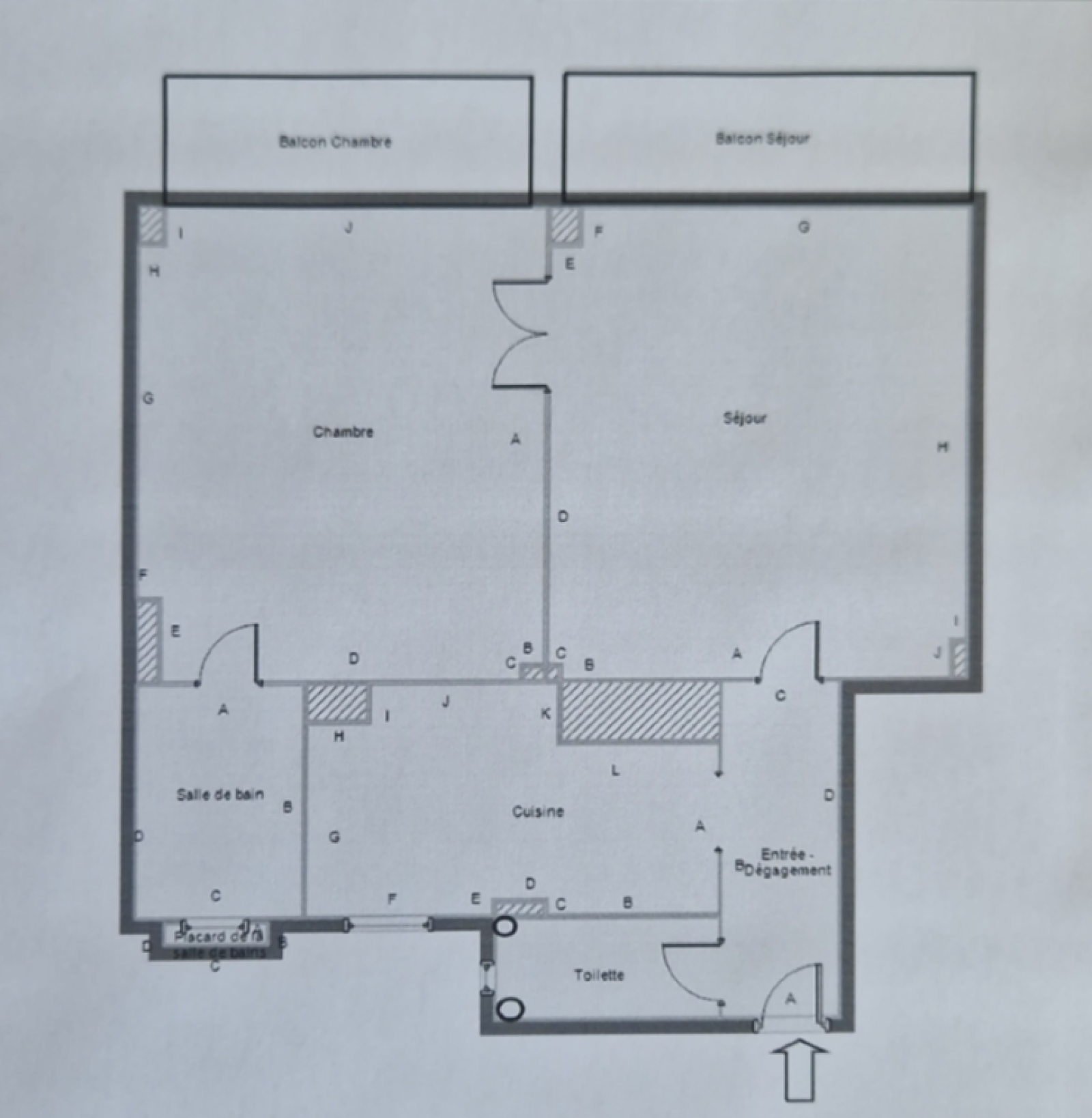
Au 1er étage avec ascenseur, venez découvrir ce charmant 2 pièces de 37 m², entièrement RÉNOVÉ, très lumineux, avec DEUX balcons.

L’appartement se compose d’une entrée avec placard, d’un séjour avec balcon donnant sur le bois de Vincennes, sans VIS A VIS, d’une cuisine séparée avec fenêtre, d’une chambre avec balcon, d’une salle de bains, de WC indépendants et d’une cave en sous-sol.

Le bien bénéficie d’un chauffage individuel au gaz (chaudière neuve avec thermostat centralisé), et d’un chauffage collectif au gaz également inclus dans les charges, estimées à 147 € par mois.

Montant estimé des dépenses énergétiques annuelles : entre 780 € et 1 110 €

Taxe Foncière : 979 €

Anciennement loué à 1 200€ charges comprises. 

DPE D

Coup de cœur assuré

Idéal premier achat, pied-à-terre, ou investissement locatif.

À visiter rapidement !

découvrir le bien

Descriptif du bien

TRAD_PAMPERO_Caracteristique Valeurs
Code postal 94220
Surface habitable (m²) 37 m²
Surface loi Carrez (m²) 37 m²
Nombre de chambre(s) 1
Nombre de pièces 2
Etage 1
Nombre de niveaux 5
Ascenseur OUI
Vue Bois de vincennes
TRAD_PAMPERO_Caracteristique Valeurs
Nb de salle de bains 1
Cuisine Séparée
Mode de chauffage Gaz, Autre, Gaz
Type de chauffage Radiateur, TRAD_TYPE_CHAUFF_CHAUDIERE, TRAD_TYPE_CHAUFF_CHAUDIERE
Format de chauffage Individuel, Individuel, Individuel
Interphone OUI
Balcon OUI
Terrasse OUI
Cave OUI
Exposition Est
Année de construction 1800
TRAD_PAMPERO_Caracteristique Valeurs
Copropriété OUI
Lot n° 3
nombre de lots 12
plan de sauvegarde NON
statut du syndic pas de procédure en cours
TRAD_PAMPERO_Caracteristique Valeurs
Prix de vente honoraires TTC inclus 338 000 €
Charges 150 €
Taxe foncière annuelle 979 €
DPE GES
  • Commerces et santé
  • Loisirs
  • Ecoles
  • Transports
  • Pratique
Ce bien vous est proposé par
Ce bien vous intéresse ?
Fieldset par défaut
Fieldset par défaut
Validation

* Champs obligatoires

Contacter l'agence
Validation
Les informations recueillies sur ce formulaire sont enregistrées dans un fichier informatisé par La Boite Immo agissant comme Sous-traitant du traitement pour la gestion de la clientèle/prospects de l'Agence / du Réseau qui reste Responsable du Traitement de vos Données personnelles.
La base légale du traitement repose sur l’intérêt légitime de l'Agence / du Réseau.
Elles sont conservées jusqu'à demande de suppression et sont destinées à l'Agence / au Réseau.
Conformément à la loi « informatique et libertés », vous pouvez exercer votre droit d'accès aux données vous concernant et les faire rectifier en contactant l'Agence / le Réseau.
Si vous estimez, après avoir contacté l'Agence / le Réseau, que vos droits « Informatique et Libertés » ne sont pas respectés, vous pouvez adresser une réclamation à la CNIL.
Nous vous informons de l’existence de la liste d'opposition au démarchage téléphonique « Bloctel », sur laquelle vous pouvez vous inscrire ici : https://www.bloctel.gouv.fr 
Dans le cadre de la protection des Données personnelles, nous vous invitons à ne pas inscrire de Données sensibles dans le champ de saisie libre
Ce site est protégé par reCAPTCHA, les Politiques de Confidentialité et les Conditions d'Utilisation de Google s'appliquent.