Nous suivre
0
Réf : 3567E
Exclusif

Appartement refait à neuf - Lumineux - Calme

Le Perreux-sur-Marne (94170)
230 000 €

A propos de ce bien

Situé sur le très prisé quai de l’Artois, au cœur du secteur recherché de l’Île d’Amour,

Dans une résidence récente de standing, parfaitement entretenue et au calme, avec vue dégagée sur la Marne,

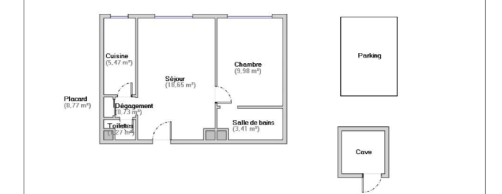
BR Immobillier vous propose. cet. appartement 2 pièces de 40 m² au 3ème étage sans ASC, il se compose d’un séjour spacieux et lumineux, d’une chambre avec rangements attenante à une salle de bain équipée d’une baignoire à jets, d’une cuisine séparée, d’un toilette indépendant et d’un cagibi servant d’espace de rangement.


Une cave en terre battue ainsi qu’une place de parking privative complètent le bien.

La résidence comprend quatre étages et trois appartements par palier.
Le chauffage au sol et l’eau chaude sont collectifs, l’électricité individuelle.


Appartement orienté EST, au calme, avec un cadre agréable en bord de Marne, proche des commerces et des transports.

RER A 700 mètres de la station "LES BOULLEREAUX CHAMPIGNY"

DPE : E

Charges : 590 € /trimestre

Taxe foncière : 1 175€

Á VISITER SANS PLUS TARDER.

découvrir le bien

Descriptif du bien

TRAD_PAMPERO_Caracteristique Valeurs
Code postal 94170
Surface habitable (m²) 40 m²
Nombre de chambre(s) 1
Nombre de pièces 2
Etage 3
Nombre de niveaux 5
Ascenseur NON
Vue degagé
TRAD_PAMPERO_Caracteristique Valeurs
Nb de salle de bains 1
Nb de salle d'eau 1
Cuisine Séparée
Mode de chauffage Electrique
Type de chauffage Au sol
Format de chauffage Collectif
Cave OUI
Exposition Sud-Est
Année de construction 1995
TRAD_PAMPERO_Caracteristique Valeurs
Copropriété OUI
Lot n° 14
nombre de lots 149
plan de sauvegarde NON
statut du syndic pas de procédure en cours
TRAD_PAMPERO_Caracteristique Valeurs
Prix de vente honoraires TTC inclus 230 000 €
Charges 50 €
Taxe foncière annuelle 1 175 €
DPE GES
  • Commerces et santé
  • Loisirs
  • Ecoles
  • Transports
  • Pratique
Ce bien vous est proposé par
Ce bien vous intéresse ?
Fieldset par défaut
Fieldset par défaut
Validation

* Champs obligatoires

Contacter l'agence
Validation
Les informations recueillies sur ce formulaire sont enregistrées dans un fichier informatisé par La Boite Immo agissant comme Sous-traitant du traitement pour la gestion de la clientèle/prospects de l'Agence / du Réseau qui reste Responsable du Traitement de vos Données personnelles. La base légale du traitement repose sur l'intérêt légitime de l'Agence / du Réseau. Elles sont conservées jusqu'à demande de suppression et sont destinées à l'Agence / au Réseau. Conformément à la loi « informatique et libertés », vous disposez des droits d’accès, de rectification, d’effacement, d’opposition, de limitation et de portabilité de vos données. Vous pouvez retirer votre consentement à tout moment en contactant directement l’Agence / Le Réseau. Consultez le site https://cnil.fr/fr pour plus d’informations sur vos droits. Si vous estimez, après avoir contacté l'Agence / le Réseau, que vos droits « Informatique et Libertés » ne sont pas respectés, vous pouvez adresser une réclamation à la CNIL. Nous vous informons de l’existence de la liste d'opposition au démarchage téléphonique « Bloctel », sur laquelle vous pouvez vous inscrire ici : https://www.bloctel.gouv.fr Dans le cadre de la protection des Données personnelles, nous vous invitons à ne pas inscrire de Données sensibles dans le champ de saisie libre.
Ce site est protégé par reCAPTCHA, les Politiques de Confidentialité et les Conditions d'Utilisation de Google s'appliquent.