Nous suivre
0
Réf : 3725K
Exclusif

Investissement / FAMILLE / Jardin

Villejuif (94800)
890 000 €

A propos de ce bien

Villejuif / Frontière Kremlin-Bicêtre / Idéal investisseurs / Familles nombreuses

Située à moins de 12 minutes à pied de la ligne 14 – Hôpital Bicêtre, avec bus à proximité immédiate.

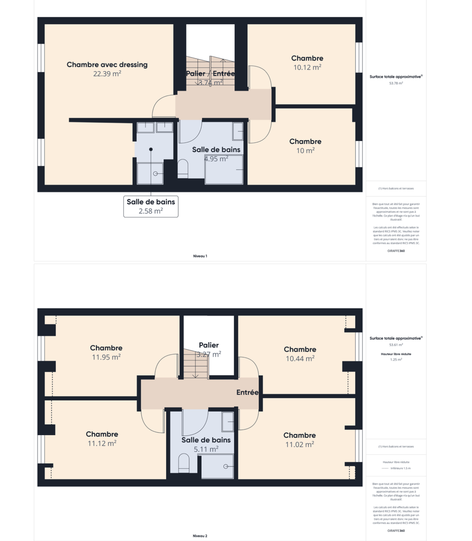
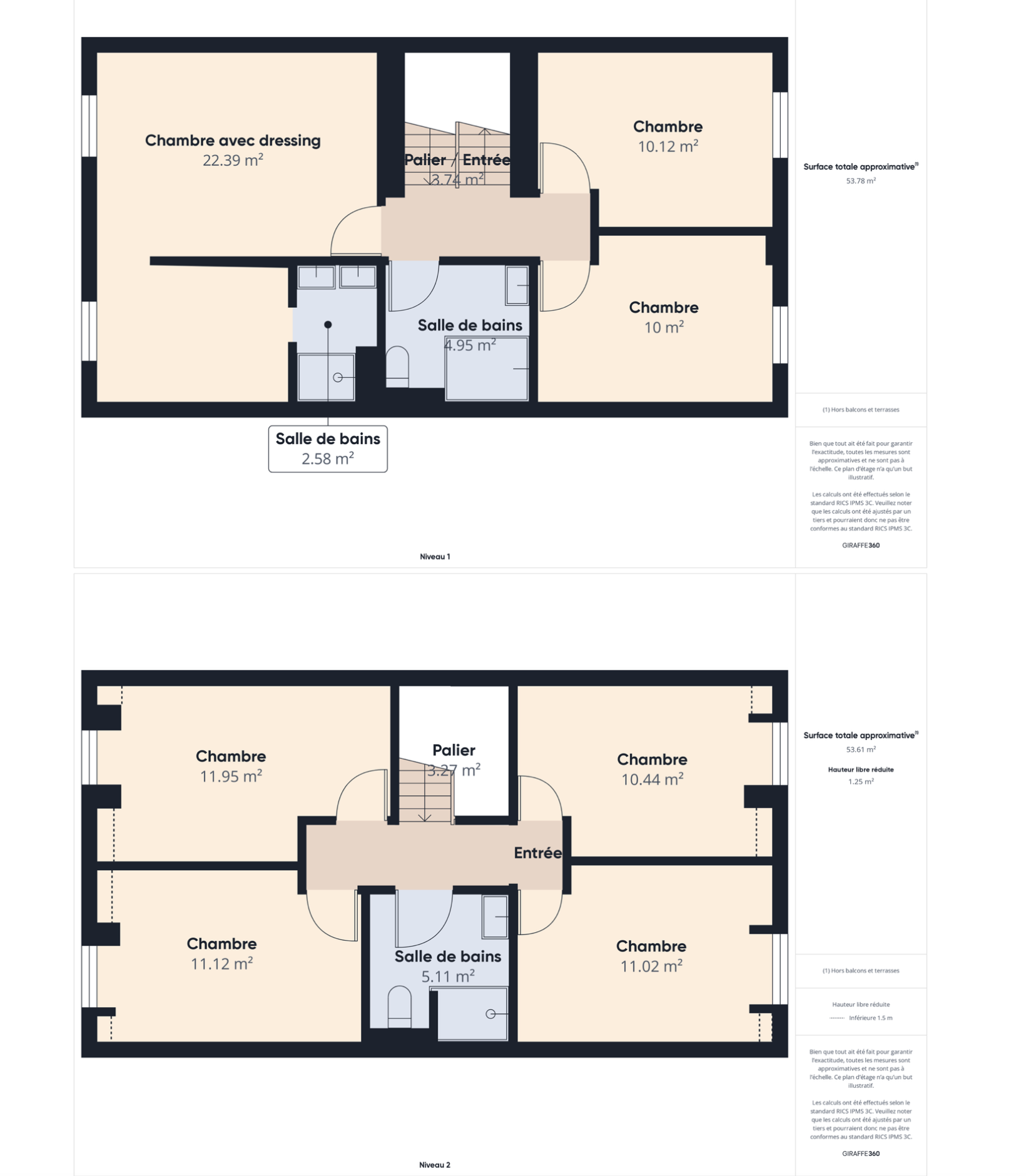
Maison de 273 m² au sol + 250 m² de jardin, édifiée sur une parcelle de 541 m².

Le cabinet BR Immobilier vous propose une maison individuelle sur 4 niveaux, idéale pour une résidence principale ou comme investissement locatif.

La maison a été rénovée en 2021 et se compose de 7 chambres, dont une suite parentale avec salle de bain et dressing, de 2 salles d’eau supplémentaires, d’un séjour de 53 m², d’un second séjour, de deux cuisines et de 4 WC.

Vous trouverez également une dépendance de 2 pièces de 38,22 m², entièrement rénovée, comprenant un séjour avec cuisine, une salle d’eau avec WC ainsi qu’une chambre.

Une place de parking complète ce bien.

Création possible de 2 chambres supplémentaires.

Actuellement exploité en colocation, offrant une excellente rentabilité proche de 12 %. Possibilité de vente libre de toute occupation.

Le cabinet reste à votre disposition pour tout complément d’information.

Nombreuses écoles à proximité, favorisant la demande locative.

découvrir le bien

Descriptif du bien

TRAD_PAMPERO_Caracteristique Valeurs
Code postal 94800
Surface habitable (m²) 273 m²
surface terrain 250 m²
Nombre de chambre(s) 8
Nombre de pièces 10
Nombre de niveaux 4
Vue Dégagée
TRAD_PAMPERO_Caracteristique Valeurs
Nb de salle de bains 1
Nb de salle d'eau 3
Cuisine Américaine
Type de cuisine Equipée
Mode de chauffage Electrique
Type de chauffage TRAD_TYPE_CHAUFF_CHAUDIERE
Format de chauffage Individuel
Nombre de parking 1
Exposition Sud
Année de construction 1921
TRAD_PAMPERO_Caracteristique Valeurs
Copropriété NON
TRAD_PAMPERO_Caracteristique Valeurs
Prix de vente 890 000 €
Les honoraires d'agence seront intégralement à la charge du vendeur  
Taxe foncière annuelle 3 525 €
DPE GES
  • Commerces et santé
  • Loisirs
  • Ecoles
  • Transports
  • Pratique
Ce bien vous est proposé par
Ce bien vous intéresse ?
Fieldset par défaut
Fieldset par défaut
Validation

* Champs obligatoires

Contacter l'agence
Validation
Les informations recueillies sur ce formulaire sont enregistrées dans un fichier informatisé par La Boite Immo agissant comme Sous-traitant du traitement pour la gestion de la clientèle/prospects de l'Agence / du Réseau qui reste Responsable du Traitement de vos Données personnelles. La base légale du traitement repose sur l'intérêt légitime de l'Agence / du Réseau. Elles sont conservées jusqu'à demande de suppression et sont destinées à l'Agence / au Réseau. Conformément à la loi « informatique et libertés », vous disposez des droits d’accès, de rectification, d’effacement, d’opposition, de limitation et de portabilité de vos données. Vous pouvez retirer votre consentement à tout moment en contactant directement l’Agence / Le Réseau. Consultez le site https://cnil.fr/fr pour plus d’informations sur vos droits. Si vous estimez, après avoir contacté l'Agence / le Réseau, que vos droits « Informatique et Libertés » ne sont pas respectés, vous pouvez adresser une réclamation à la CNIL. Nous vous informons de l’existence de la liste d'opposition au démarchage téléphonique « Bloctel », sur laquelle vous pouvez vous inscrire ici : https://www.bloctel.gouv.fr Dans le cadre de la protection des Données personnelles, nous vous invitons à ne pas inscrire de Données sensibles dans le champ de saisie libre.
Ce site est protégé par reCAPTCHA, les Politiques de Confidentialité et les Conditions d'Utilisation de Google s'appliquent.