Nous suivre
0
Réf : 3574

LOFT D'ARCHITECTE de 96m2 avec DEUX MEZZANINES, TERRASSE et JARDIN - CALME

Ivry-sur-Seine (94200)
545 000 €

A propos de ce bien

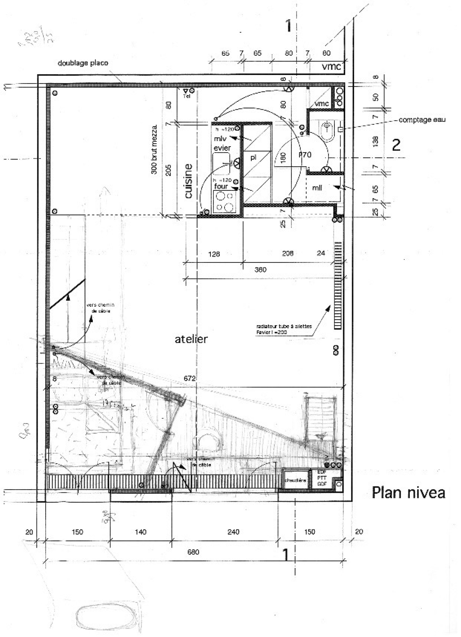
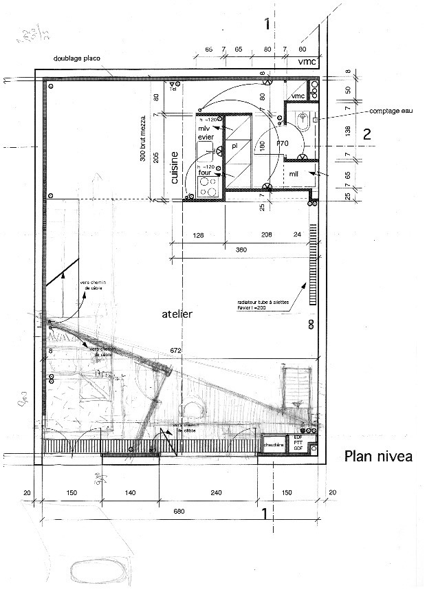
COUP DE CŒUR ABSOLU ! RARE ! À 8 minutes à pied du MÉTRO PIERRE ET MARIE CURIE (Ligne 7), dans une coproprité VERDOYANTE et FLEURIE, CALME et bien entretenue, le Cabinet BR Immobilier vous propose ce LOFT refait par un ARCHITECTE en l'an 2000, avec TERRASSE/JARDIN, ALLÉE PRIVATIVE et PARKING.Ce MAGINFIQUE APPARTEMENT de TYPE LOFT de 96m2 (92 m2 Loi Carrez) situé en rez-de-jardin se compose d'un SPACIEUX SÉJOUR (5 mètres sous plafond) avec CUISINE OUVERTE et ÉQUIPÉE, CELLIER et WC séparés, et accès de plein pied à la terrasse en jouissance morale. DEUX MEZZANINES se partagent les espaces supérieurs du bien : un premier escalier accède à une CHAMBRE avec SALLE DE BAIN attenante, ainsi qu'une SALLE d'EAU et WC, et un DEUXIÈME ESCALIER desserre un ESPACE BUREAU et UNE AUTRE CHAMBRE donnant sur le jardin Un parking sécurisé complète ce bien. Le DPE est en C et l'appartement offre le provilège d'être chaud l'hiver et toujours frais en été. Métro Ligne 7 à 8 minutes, RER C à 5 minutes, Tramway à 15 minutes, BUS 132 et 325 au coin de la rue permettent de rejoindre la LIGNE 14 en 10 minutes. Centre commercial Carrefour GRAND CIEL à 5 minutes à pied. Possibilité de charger et décharger vehicules juste devant l'appartement. Lieu atypique et sublime à visiter rapidement. IDÉAL COUPLE / ARTISTE / PERSONNE SEULE.

Descriptif du bien

TRAD_PAMPERO_Caracteristique Valeurs
Code postal 94200
Surface habitable (m²) 96 m²
surface terrain 20 m²
Surface loi Carrez (m²) 92 m²
Nombre de chambre(s) 2
Nombre de pièces 3
Nombre de niveaux 2
Vue jardin
TRAD_PAMPERO_Caracteristique Valeurs
Nb de salle de bains 1
Nb de salle d'eau 1
Cuisine Américaine
Type de cuisine Equipée
Mode de chauffage Gaz
Type de chauffage Radiateur
Format de chauffage Individuel
Terrasse OUI
Nombre de parking 1
Exposition Nord
Année de construction 2000
Terrain piscinable NON
Terrain arboré OUI
Terrain divisible NON
TRAD_PAMPERO_Caracteristique Valeurs
Copropriété OUI
Lot n° A02
nombre de lots 40
plan de sauvegarde NON
statut du syndic pas de procédure en cours
TRAD_PAMPERO_Caracteristique Valeurs
Prix de vente honoraires TTC inclus 545 000 €
DPE GES
  • Commerces et santé
  • Loisirs
  • Ecoles
  • Transports
  • Pratique
Ce bien vous est proposé par
Ce bien vous intéresse ?
Fieldset par défaut
Fieldset par défaut
Validation

* Champs obligatoires

Contacter l'agence
Validation
Les informations recueillies sur ce formulaire sont enregistrées dans un fichier informatisé par La Boite Immo agissant comme Sous-traitant du traitement pour la gestion de la clientèle/prospects de l'Agence / du Réseau qui reste Responsable du Traitement de vos Données personnelles.
La base légale du traitement repose sur l’intérêt légitime de l'Agence / du Réseau.
Elles sont conservées jusqu'à demande de suppression et sont destinées à l'Agence / au Réseau.
Conformément à la loi « informatique et libertés », vous pouvez exercer votre droit d'accès aux données vous concernant et les faire rectifier en contactant l'Agence / le Réseau.
Si vous estimez, après avoir contacté l'Agence / le Réseau, que vos droits « Informatique et Libertés » ne sont pas respectés, vous pouvez adresser une réclamation à la CNIL.
Nous vous informons de l’existence de la liste d'opposition au démarchage téléphonique « Bloctel », sur laquelle vous pouvez vous inscrire ici : https://www.bloctel.gouv.fr 
Dans le cadre de la protection des Données personnelles, nous vous invitons à ne pas inscrire de Données sensibles dans le champ de saisie libre
Ce site est protégé par reCAPTCHA, les Politiques de Confidentialité et les Conditions d'Utilisation de Google s'appliquent.