Nous suivre
0
Réf : 2360
Vendu

T3 dernier étage de 66 M2 TRAVERSANT avec DEUX TERRASSES POUR 46,6 M2 D'EXTERIEUR

Aubervilliers (93300)
Nous consulter

A propos de ce bien

 

L’élégance rencontre l’efficacité énergétique dans un cadre verdoyant

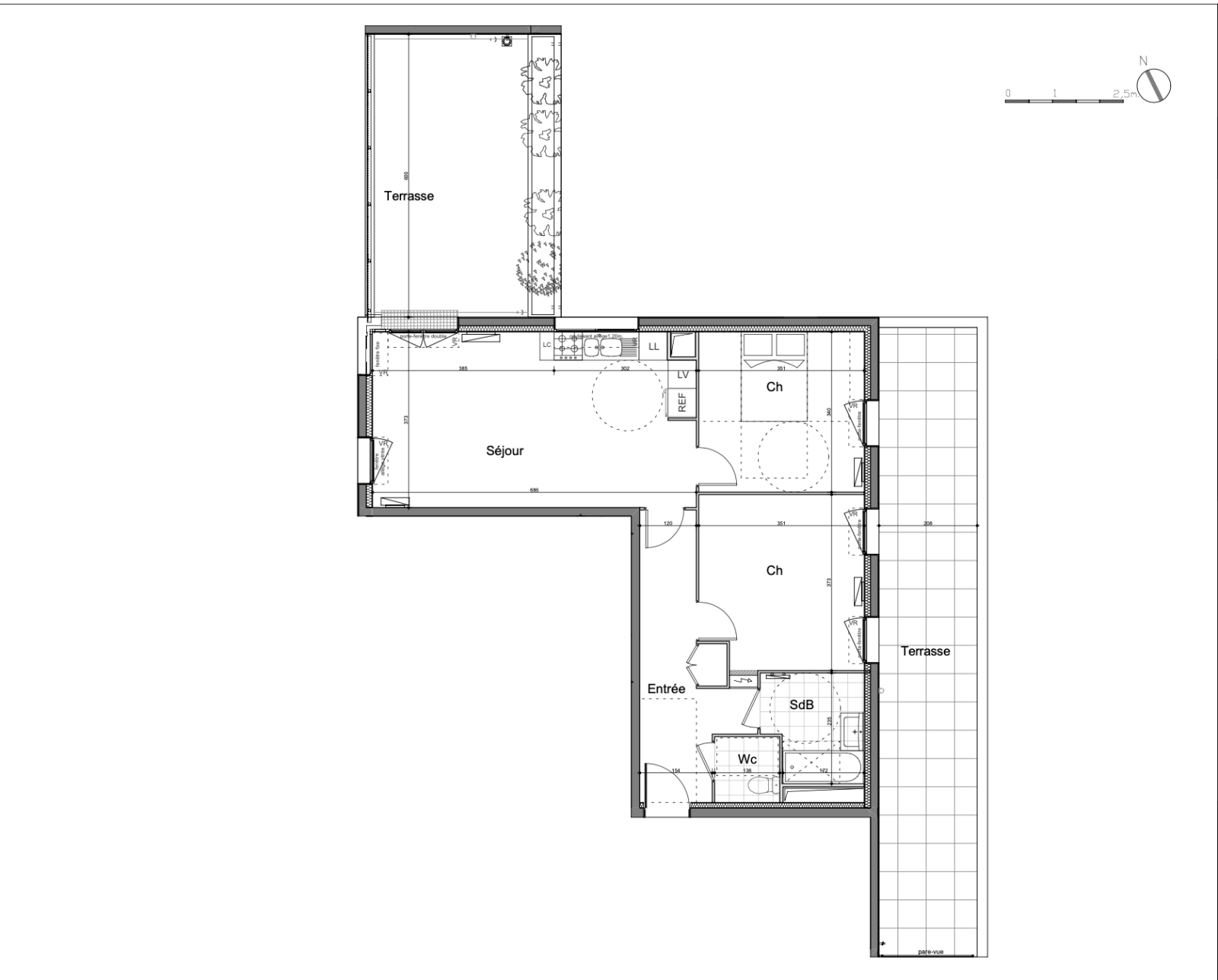
Profitez d'une opportunité inégalée pour acquérir un appartement trois pièces, agencé au 4 ème et dernier étage avec une attention méticuleuse pour allier luxe et respect de l'environnement. Cet appartement est un joyau dans le paysage immobilier actuel, niché dans un immeuble de dernière génération à deux pas du dynamique marché du Montfort et encadré par les lignes de métro 12 et 7.

Votre futur chez-vous propose :


Un séjour/cuisine agréable : Un espace ouvert et accueillant de 25, 22 m2 ouvert sur grande TERRASSE OUEST DE 19,6 M2 invitant la lumière naturelle à baigner votre intérieur.

DEUX chambres bien dimensionnées : chacunes conçues pour offrir espace personnel et confort SUR UNE GRANDRE TERRASSE EST DE 26,6 M2

  • Une salle de bain élégante et spacieuse : Pour démarrer vos journées dans la sérénité ou vous détendre en soirée.
  • WC séparé : Optimisant l'utilisation et le confort de votre nouvel espace de vie.
  • Stationnement privé : Plus de soucis de parking avec une place dédiée en sous-sol.
  • Des charges de copropriété avantageuses : Bénéficiez d'une gestion optimisée pour un coût mensuel réduit.
  • Local vélo sécurisé : Pour les résidents privilégiant les déplacements écologiques et pratiques.

Un investissement pensé pour l'avenir : Avec la promesse des dernières normes environnementales, cet appartement n'est pas seulement un lieu de vie, c'est une déclaration d'un mode de vie conscient et de qualité.

Cette vente flash est une occasion à saisir immédiatement pour ceux qui cherchent à habiter dans une résidence qui représente le meilleur du design moderne et de la fonctionnalité.

Ne manquez pas cette chance de vous offrir un appartement où confort rime avec durabilité. Contactez-nous dès maintenant pour en savoir plus.

Descriptif du bien

TRAD_PAMPERO_Caracteristique Valeurs
Code postal 93300
Surface habitable (m²) 66,21 m²
Surface loi Carrez (m²) 66,21 m²
Nombre de chambre(s) 2
Nombre de pièces 3
Etage 3
Ascenseur OUI
TRAD_PAMPERO_Caracteristique Valeurs
Nb de salle de bains 1
Mode de chauffage Gaz
Type de chauffage Radiateur
Format de chauffage Collectif
Balcon NON
Terrasse OUI
Cave NON
Exposition Est-Ouest
Année de construction 2021
TRAD_PAMPERO_Caracteristique Valeurs
Copropriété OUI
Quote Part annuelle des charges 2 370 €
  • Commerces et santé
  • Loisirs
  • Ecoles
  • Transports
  • Pratique
Ce bien vous est proposé par