Nous suivre
0
Réf : 3688N
Exclusif

PORTE DE PARIS / PARKING / TRAVERSANT / METRO / 3 PIECES / LUMINEUX

Romainville (93230)
360 000 €

A propos de ce bien

COUP DE CŒUR. Aux PORTES DE PARIS. À 100 m de la future station de tramway T1 (Libre Pensée) et à 10 minutes à pied du métro 11 (Montreuil-Hôpital). Proche des écoles et de tous commerces.

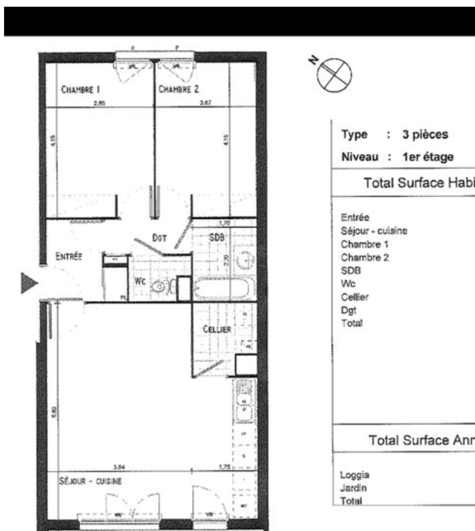
Le Cabinet Br-Immobilier vous propose, au 1er étage d’une BELLE résidence de STANDING de 2017, cet AGRÉABLE 3 PIÈCES TRAVERSANT de 66 m² CARREZ. LUMINEUX grâce à sa DOUBLE EXPOSITION SUD-OUEST et NORD-EST, EN TRÈS BON ÉTAT GÉNÉRAL.

Ce bien superbement agencé est composé d’une ENTRÉE desservant un VASTE SÉJOUR avec une CUISINE ouverte aménagée donnant sur une LOGGIA de 11 m² ainsi qu’un MAGNIFIQUE JARDIN de 85 m², DEUX CHAMBRES spacieuses, une SALLE D’EAU et des WC séparés.

Une PLACE DE PARKING complète ce bien.

RARE sur le marché. Écoles, transports et tous commerces à proximité. Agréable vie de quartier, calme et pavillonnaire.

Charges : 110 euros/mois (entretien, eau froide, parking, ordures ménagères).

Ce bien bénéficie encore de deux années de GARANTIE DÉCENNALE.

découvrir le bien

Descriptif du bien

TRAD_PAMPERO_Caracteristique Valeurs
Code postal 93230
Surface habitable (m²) 66 m²
Nombre de chambre(s) 2
Nombre de pièces 3
Etage 1
Nombre de niveaux 1
TRAD_PAMPERO_Caracteristique Valeurs
Nb de salle de bains 1
Cuisine Américaine
Type de cuisine Equipée
Mode de chauffage Gaz
Type de chauffage Autre
Format de chauffage Individuel
Terrasse OUI
Cave NON
Exposition Sud-Ouest
Année de construction 2017
TRAD_PAMPERO_Caracteristique Valeurs
Copropriété OUI
nombre de lots 93
TRAD_PAMPERO_Caracteristique Valeurs
Prix de vente 360 000 €
Les honoraires d'agence seront intégralement à la charge du vendeur  
Charges 110 €
Taxe foncière annuelle 1 550 €
DPE GES
  • Commerces et santé
  • Loisirs
  • Ecoles
  • Transports
  • Pratique
Ce bien vous est proposé par
Ce bien vous intéresse ?
Fieldset par défaut
Fieldset par défaut
Validation

* Champs obligatoires

Contacter l'agence
Validation
Les informations recueillies sur ce formulaire sont enregistrées dans un fichier informatisé par La Boite Immo agissant comme Sous-traitant du traitement pour la gestion de la clientèle/prospects de l'Agence / du Réseau qui reste Responsable du Traitement de vos Données personnelles. La base légale du traitement repose sur l'intérêt légitime de l'Agence / du Réseau. Elles sont conservées jusqu'à demande de suppression et sont destinées à l'Agence / au Réseau. Conformément à la loi « informatique et libertés », vous disposez des droits d’accès, de rectification, d’effacement, d’opposition, de limitation et de portabilité de vos données. Vous pouvez retirer votre consentement à tout moment en contactant directement l’Agence / Le Réseau. Consultez le site https://cnil.fr/fr pour plus d’informations sur vos droits. Si vous estimez, après avoir contacté l'Agence / le Réseau, que vos droits « Informatique et Libertés » ne sont pas respectés, vous pouvez adresser une réclamation à la CNIL. Nous vous informons de l’existence de la liste d'opposition au démarchage téléphonique « Bloctel », sur laquelle vous pouvez vous inscrire ici : https://www.bloctel.gouv.fr Dans le cadre de la protection des Données personnelles, nous vous invitons à ne pas inscrire de Données sensibles dans le champ de saisie libre.
Ce site est protégé par reCAPTCHA, les Politiques de Confidentialité et les Conditions d'Utilisation de Google s'appliquent.