Nous suivre
0
Réf : 927
Vendu

CHARMANTE MAISON - TERRASSE - LUMINEUSE

Noisy-le-Sec (93130)
Nous consulter

A propos de ce bien

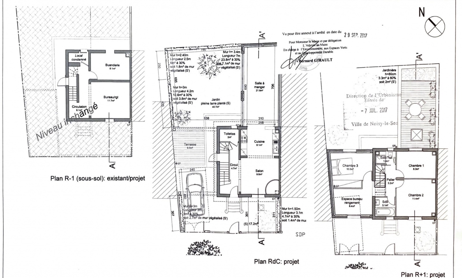
Noisy le Sec. A 14 minutes à pied du RER E et à 5 minutes du Centre ville. Proche de tous commerces, Écoles et crèche. COUP DE COEUR GARANTIT pour cette MAISON FAMILIALE de 118 M2 rénovée récemment avec 2 extensions en bois avec une isolation en fibre végétale ( 40 M2 supplémentaires par rapport au bâti d'origine). Sa façade 1930 toute en BRIQUE est pleine de CHARME, on entre sur un SALON avec un INSERT BOIS, en enfilade on trouve la CUISINE, elle même OUVERTE sur la GRANDE SALLE À MANGER ou SALON DE 21,6 M2 (EXTENSION 1). Cette pièce de vie LUMINEUSE grâce à des grandes baies vitrées donne sur le JARDIN de 40,5 m2 orienté SUD. L'escalier mène à l'étage avec 4 chambres ( dont 1 extension 2) 1 wc et une SALLE de BAINS. Une belle TERRASSE en bois (au dessus de l'extension 1) donne sur une des chambres. Au sous sol, UNE BUANDERIE ET UN BUREAU. Une PLACE DE PARKING, un jardinet et une possibilite de TERRASSE ABRITÉE de 9 m2 complètent ce bien d'exception ! A consulter le plan PARFAIT à la suite des photos. A visiter SANS TARDER.

Descriptif du bien

TRAD_PAMPERO_Caracteristique Valeurs
Code postal 93130
Surface habitable (m²) 118 m²
surface terrain 110 m²
Nombre de chambre(s) 4
Nombre de pièces 6
Nombre de niveaux 2
TRAD_PAMPERO_Caracteristique Valeurs
Nombre de garage 1
Exposition Sud
Année de construction 1930
TRAD_PAMPERO_Caracteristique Valeurs
Copropriété NON
TRAD_PAMPERO_Caracteristique Valeurs
Taxe foncière annuelle 1 823 €
  • Commerces et santé
  • Loisirs
  • Ecoles
  • Transports
  • Pratique
Ce bien vous est proposé par