Nous suivre
0
Réf : 35011
Exclusif

2 pièces – 47 m² / EXCELLENT ÉTAT GÉNÉRAL / TRAVERSANT / LUMINEUX

Boulogne-Billancourt (92100)
410 000 €

A propos de ce bien

COUP DE CŒUR. Dans le quartier de Silly Gallieni. Au pied de l'arrêt de métro Pont de Sèvres. À deux pas des Quais de Seine et de tous commerces.

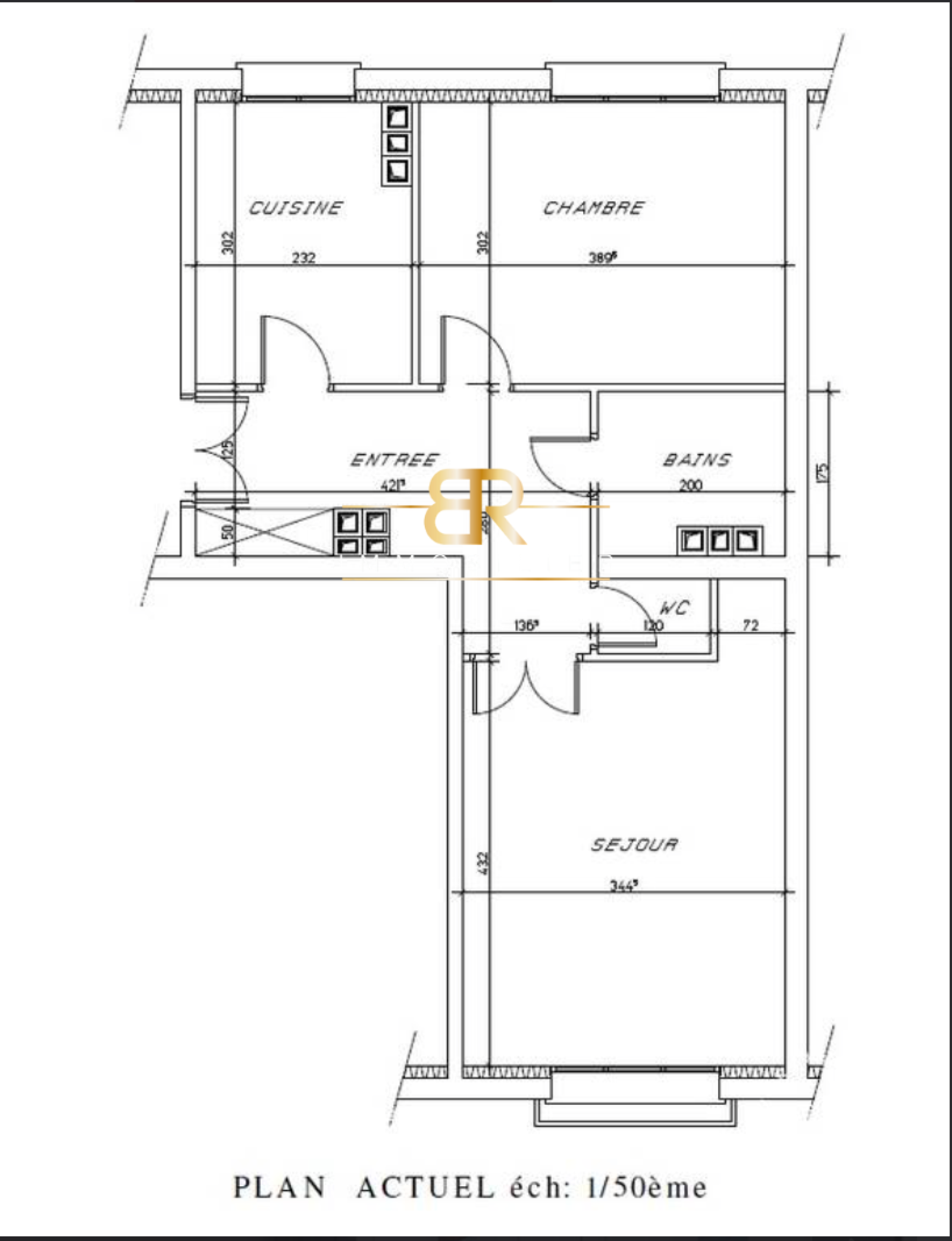
Le Cabinet BR-Immobilier vous propose, au 1er étage avec ascenseur d'un bel immeuble bien entretenu, ce charmant 2 pièces TRAVERSANT, EN EXCELLENT ÉTAT GÉNÉRAL, de 47 m² Carrez.

Ce bien est composé d'une entrée desservant un VASTE séjour exposé OUEST, une cuisine aménagée et totalement équipée, une chambre spacieuse, une salle de douche et un WC séparé.

Idéal investisseur et primo-accédant.

Possibilité de louer une place de PARKING.

Une CAVE complète ce bien.

LUMINEUX grâce à son EXPOSITION (OUEST), calme, sans aucune perte d'espace et optimisé.

RARE sur le marché. Écoles et commerces à proximité. Agréable vie de quartier, esprit village et familial.

Charges: 210 euros par mois

Taxe foncière: 1240 euros par mois

découvrir le bien

Descriptif du bien

TRAD_PAMPERO_Caracteristique Valeurs
Code postal 92100
Surface habitable (m²) 47 m²
Surface loi Carrez (m²) 47 m²
Nombre de chambre(s) 1
Nombre de pièces 2
Etage 1
Nombre de niveaux 1
Ascenseur OUI
TRAD_PAMPERO_Caracteristique Valeurs
Nb de salle d'eau 1
Cuisine Séparée
Type de cuisine Equipée
Mode de chauffage Gaz
Type de chauffage TRAD_TYPE_CHAUFF_CHAUDIERE
Format de chauffage Collectif
Balcon NON
Terrasse NON
Cave OUI
Exposition Ouest
Année de construction 1969
TRAD_PAMPERO_Caracteristique Valeurs
Copropriété OUI
nombre de lots 70
TRAD_PAMPERO_Caracteristique Valeurs
Prix de vente 410 000 €
Les honoraires d'agence seront intégralement à la charge du vendeur  
Charges 210 €
Taxe foncière annuelle 1 240 €
DPE GES
  • Commerces et santé
  • Loisirs
  • Ecoles
  • Transports
  • Pratique
Ce bien vous est proposé par
Ce bien vous intéresse ?
Fieldset par défaut
Fieldset par défaut
Validation

* Champs obligatoires

Contacter l'agence
Validation
Les informations recueillies sur ce formulaire sont enregistrées dans un fichier informatisé par La Boite Immo agissant comme Sous-traitant du traitement pour la gestion de la clientèle/prospects de l'Agence / du Réseau qui reste Responsable du Traitement de vos Données personnelles. La base légale du traitement repose sur l'intérêt légitime de l'Agence / du Réseau. Elles sont conservées jusqu'à demande de suppression et sont destinées à l'Agence / au Réseau. Conformément à la loi « informatique et libertés », vous disposez des droits d’accès, de rectification, d’effacement, d’opposition, de limitation et de portabilité de vos données. Vous pouvez retirer votre consentement à tout moment en contactant directement l’Agence / Le Réseau. Consultez le site https://cnil.fr/fr pour plus d’informations sur vos droits. Si vous estimez, après avoir contacté l'Agence / le Réseau, que vos droits « Informatique et Libertés » ne sont pas respectés, vous pouvez adresser une réclamation à la CNIL. Nous vous informons de l’existence de la liste d'opposition au démarchage téléphonique « Bloctel », sur laquelle vous pouvez vous inscrire ici : https://www.bloctel.gouv.fr Dans le cadre de la protection des Données personnelles, nous vous invitons à ne pas inscrire de Données sensibles dans le champ de saisie libre.
Ce site est protégé par reCAPTCHA, les Politiques de Confidentialité et les Conditions d'Utilisation de Google s'appliquent.