Nous suivre
0
Réf : 3878N
Exclusif

VUE PANORAMIQUE / PLAN OPTIMAL / CALME ET LUMINEUX

Courbevoie (92400)
520 000 €

A propos de ce bien

Situé rue Baudin à Courbevoie, à proximité immédiate de La Défense et à moins de 10 minutes de la gare de Courbevoie.

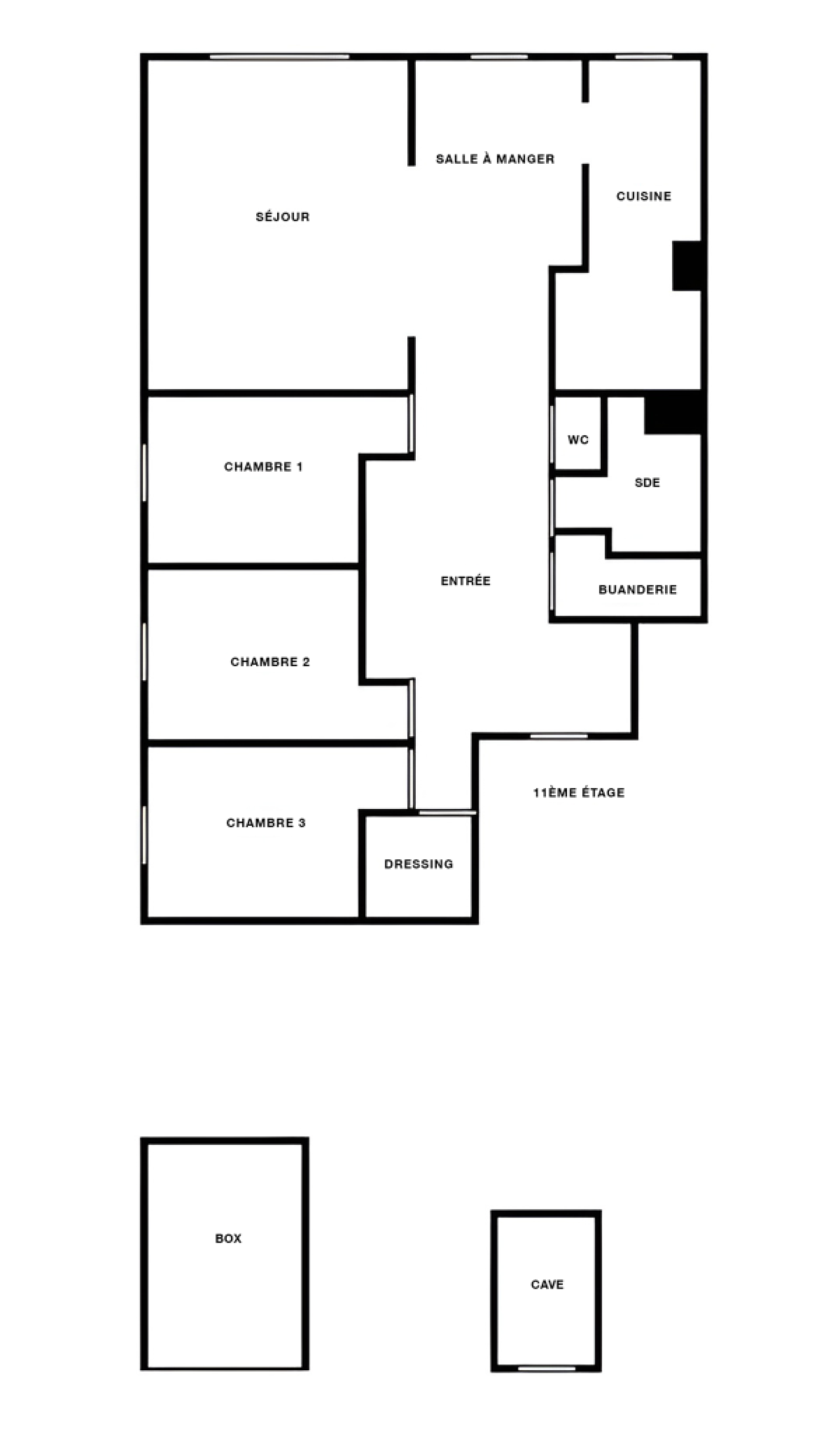
Le Cabinet BR Immobilier vous propose cet AGRÉABLE 4 pièces de 101 m², REFAIT À NEUF en 2020, avec 3 chambres, situé au 11ème étage (avec ascenseur), au sein d’un immeuble sécurisé et bien entretenu avec GARDIEN (également de nuit).

Il comprend une entrée desservant un vaste SÉJOUR avec VUE PANORAMIQUE (La Défense et, au loin, le Sacré-Cœur), une cuisine americaine ÉQUIPÉE, 3 chambres dont une avec rangements, une salle d'eau avec douche à l’italienne et 2 lavabos, un WC séparé, une BUANDERIE, un DRESSING, ainsi que de NOMBREUX RANGEMENTS. Une CAVE complète ce bien ainsi qu'un BOX. Accès PMR.

PLAN OPTIMAL / CALME ET LUMINEUX

Chauffage collectif. Les charges de copropriété comprennent notamment le chauffage, l'eau, l'ascenseur, le gardiennage, la charge du box ainsi que l'entretien des parties communes.

découvrir le bien

Descriptif du bien

TRAD_PAMPERO_Caracteristique Valeurs
Code postal 92400
Surface habitable (m²) 101 m²
Surface loi Carrez (m²) 101 m²
Nombre de chambre(s) 3
Nombre de pièces 4
Etage 11
Ascenseur OUI
Vue Panoramique
TRAD_PAMPERO_Caracteristique Valeurs
Cuisine Américaine
Type de cuisine Equipée
Mode de chauffage Autre
Type de chauffage Au sol
Format de chauffage Collectif
Interphone OUI
Nombre de garage 1
Cave OUI
Exposition Est-Ouest
Année de construction 1969
TRAD_PAMPERO_Caracteristique Valeurs
Copropriété NON
plan de sauvegarde NON
statut du syndic pas de procédure en cours
TRAD_PAMPERO_Caracteristique Valeurs
Prix de vente 520 000 €
Les honoraires d'agence seront intégralement à la charge du vendeur  
Taxe foncière annuelle 1 480 €
DPE GES
  • Commerces et santé
  • Loisirs
  • Ecoles
  • Transports
  • Pratique
Ce bien vous est proposé par
Ce bien vous intéresse ?
Fieldset par défaut
Fieldset par défaut
Validation

* Champs obligatoires

Contacter l'agence
Validation
Les informations recueillies sur ce formulaire sont enregistrées dans un fichier informatisé par La Boite Immo agissant comme Sous-traitant du traitement pour la gestion de la clientèle/prospects de l'Agence / du Réseau qui reste Responsable du Traitement de vos Données personnelles. La base légale du traitement repose sur l'intérêt légitime de l'Agence / du Réseau. Elles sont conservées jusqu'à demande de suppression et sont destinées à l'Agence / au Réseau. Conformément à la loi « informatique et libertés », vous disposez des droits d’accès, de rectification, d’effacement, d’opposition, de limitation et de portabilité de vos données. Vous pouvez retirer votre consentement à tout moment en contactant directement l’Agence / Le Réseau. Consultez le site https://cnil.fr/fr pour plus d’informations sur vos droits. Si vous estimez, après avoir contacté l'Agence / le Réseau, que vos droits « Informatique et Libertés » ne sont pas respectés, vous pouvez adresser une réclamation à la CNIL. Nous vous informons de l’existence de la liste d'opposition au démarchage téléphonique « Bloctel », sur laquelle vous pouvez vous inscrire ici : https://www.bloctel.gouv.fr Dans le cadre de la protection des Données personnelles, nous vous invitons à ne pas inscrire de Données sensibles dans le champ de saisie libre.
Ce site est protégé par reCAPTCHA, les Politiques de Confidentialité et les Conditions d'Utilisation de Google s'appliquent.