Nous suivre
0
Réf : 1991
Vendu

OPPORTUNITÉ - LUMINEUX - PLAN EN ÉTOILE & MODULABLE - TRAVERSANT

Courbevoie (92400)
Nous consulter

A propos de ce bien

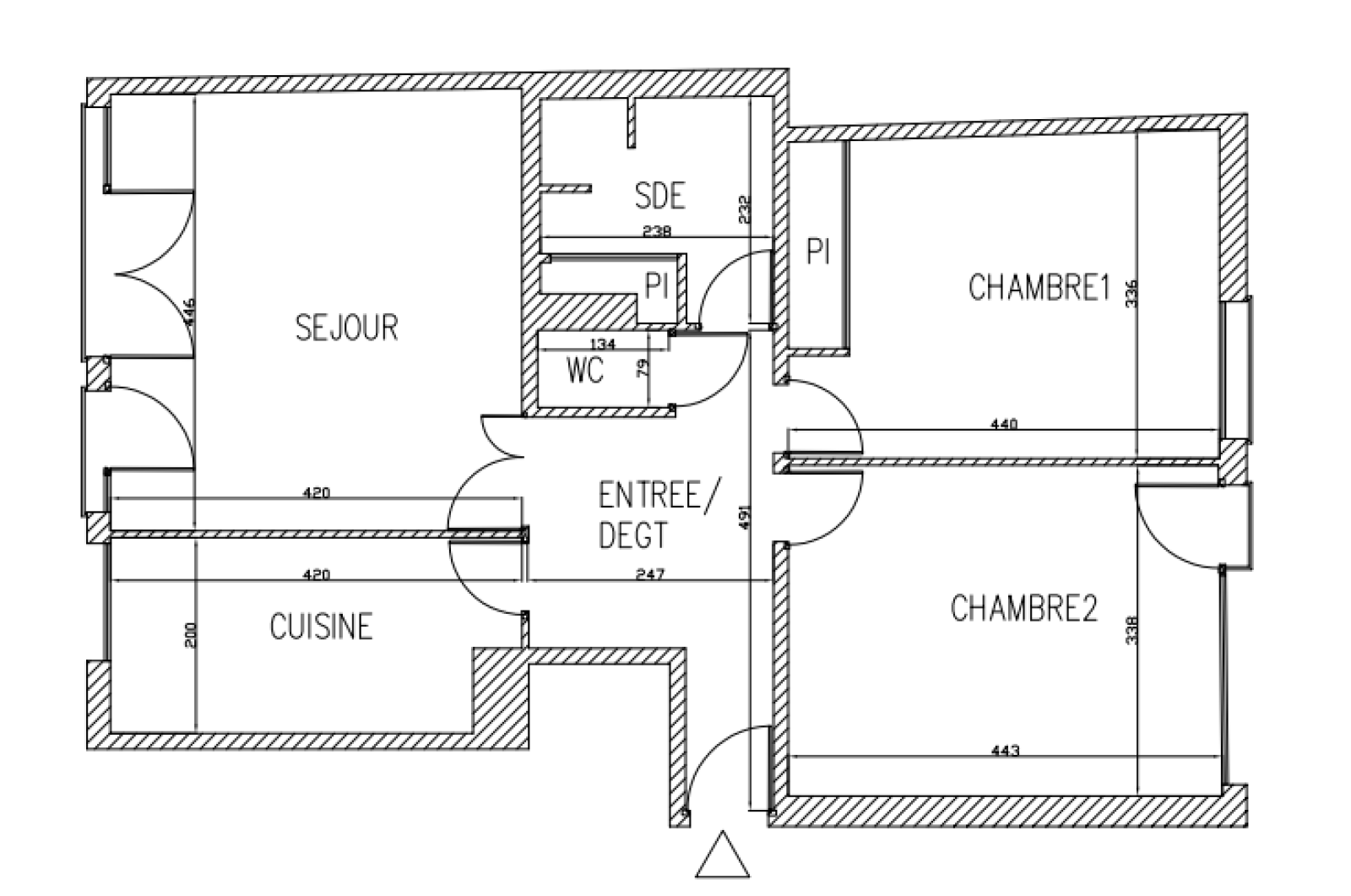
OPPORTUNITÉ - À proximité du centre ville de COURBEVOIE, au sein d'une copropriété BIEN ENTRETENUE (GARDIEN) et SÉCURISÉE (digicode et porte blindée), venez découvrir ce 3 pièces À FORT POTENTIEL situé au 4ème étage (avec ASCENSEUR) et composé: d'une entrée, d'un séjour de 18,86m2, d'une cuisine séparée (si réunion des deux, la PIÈCE À VIVRE sera de 26,82m2), de deux GRANDES chambres (dont une avec RANGEMENTS) de 14,46m2 et de 14,91m2, de wc séparés et d'une salle d'eau avec RANGEMENTS. Particulièrement LUMINEUX (exposition du séjour: sud-est), TRAVERSANT (les chambres donnent sur un espace ARBORÉ), ce bien vous séduira par son PLAN EN ÉTOILE et ses MULTIPLES POSSIBILITÉS D'AMÉNAGEMENT après travaux de rafraichissement. IDÉALEMENT SITUÉ, proche de tous transports (L1: La Défense - Grande Arche, RER A, Transilien), commerces et restaurants, ne tardez pas à venir le visiter!

Vendu avec CAVE et BOX INCLUS au prix de vente.

Charges mensuelles: 450€

Taxe foncière: 692€

DPE et GES: E

Descriptif du bien

TRAD_PAMPERO_Caracteristique Valeurs
Code postal 92400
Surface habitable (m²) 70,45 m²
Surface loi Carrez (m²) 70,45 m²
Nombre de chambre(s) 2
Nombre de pièces 3
Etage 4
Ascenseur OUI
TRAD_PAMPERO_Caracteristique Valeurs
Nb de salle d'eau 1
Cuisine Séparée
Type de cuisine SEMI-EQUIPEE
Mode de chauffage Gaz
Type de chauffage Radiateur
Format de chauffage Collectif
Interphone OUI
Cave OUI
Exposition Sud-Est
Année de construction 1970
TRAD_PAMPERO_Caracteristique Valeurs
Copropriété OUI
Lot n° 44
nombre de lots 336
Quote Part annuelle des charges 5 400 €
statut du syndic pas de procédure en cours
TRAD_PAMPERO_Caracteristique Valeurs
Charges 450 €
Taxe foncière annuelle 692 €
  • Commerces et santé
  • Loisirs
  • Ecoles
  • Transports
  • Pratique
Ce bien vous est proposé par