Nous suivre
0
Réf : 3798

Charmant DUPLEX 4 pièces au CENTRE VILLE de Puteaux en DERNIER ÉTAGE

Puteaux (92800)
650 000 €

A propos de ce bien

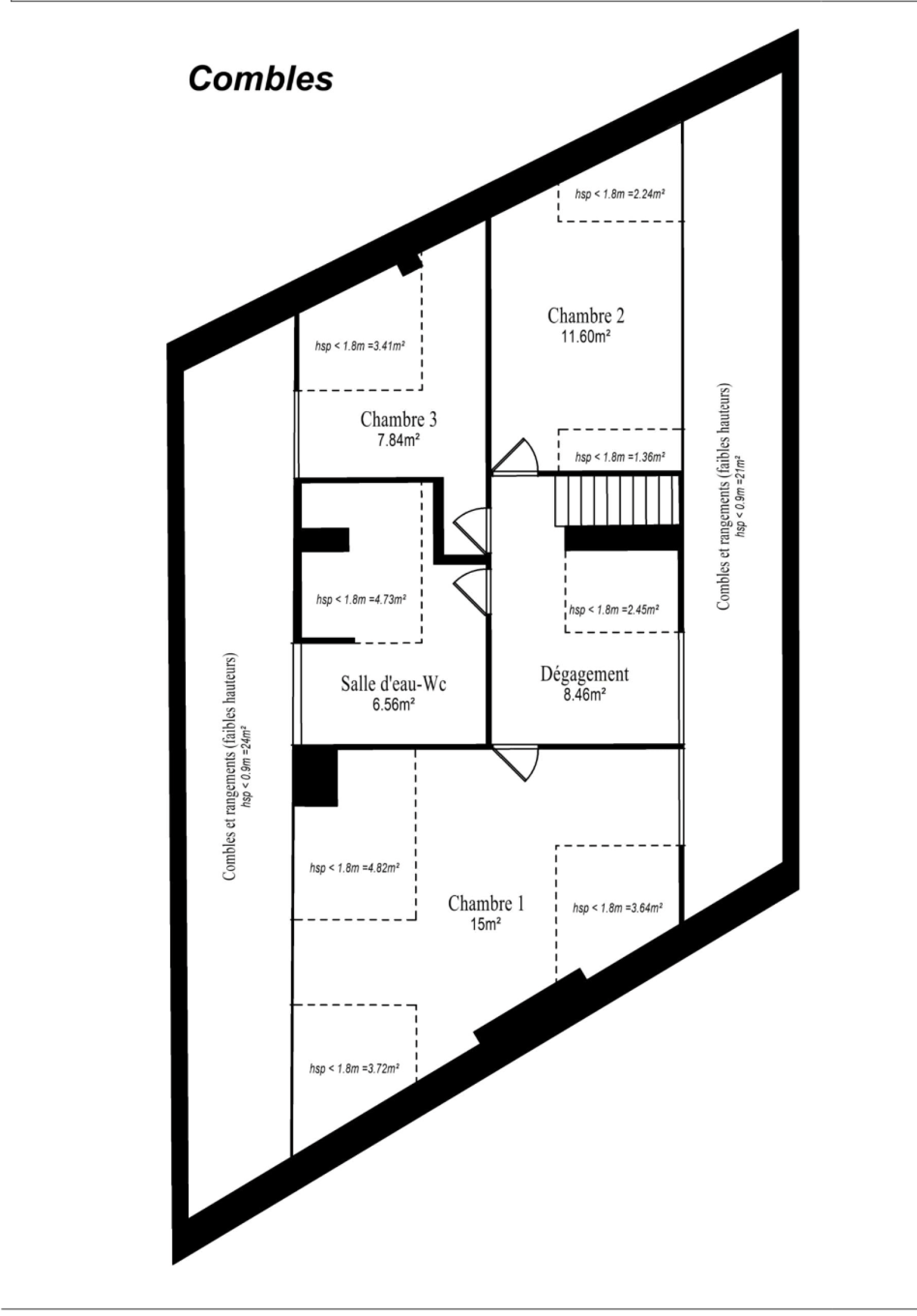
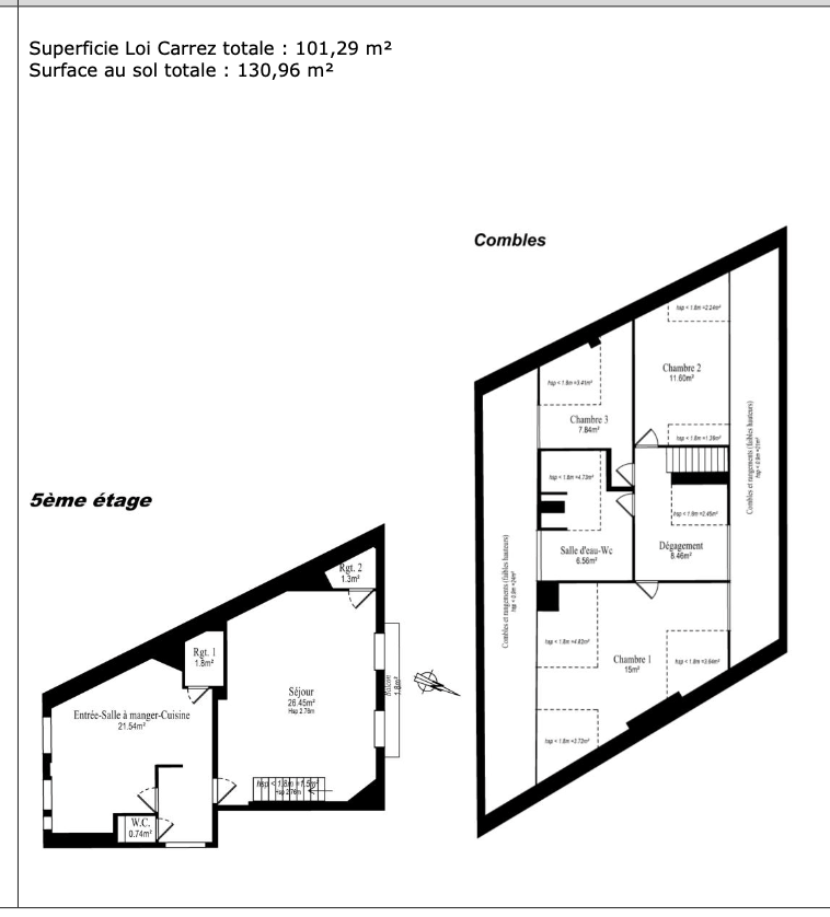
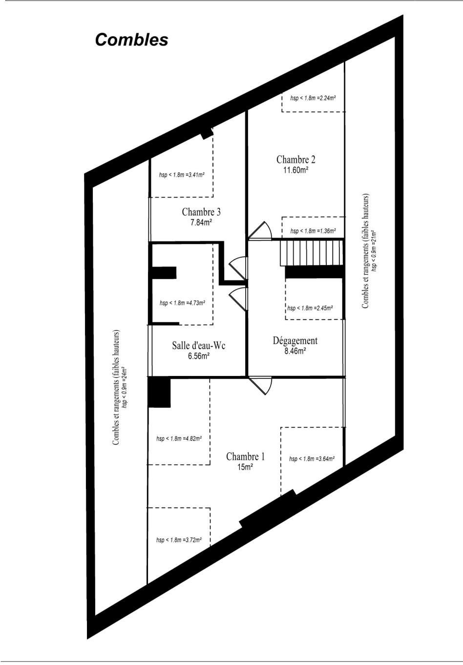
Au cœur de Puteaux, en HYPER CENTRE et au DERNIER ÉTAGE  d’un bel IMMEUBLE ANCIEN ANNÉE 30 sécurisé SANS ASCENSEUR ce DUPLEX familial de charme séduit immédiatement par ses volumes, sa luminosité et sa vue spectaculaire. Développant 101 m² Carrez (environ 130 m² au sol), l’appartement offre une distribution idéale : dès l’entrée, un double séjour lumineux avec  balconnet, une cuisine indépendante aménagée et équipée avec espace salle à manger, deux débarras et des WC séparés composent le premier niveau. À l’étage, l’espace nuit SOUS LES COMBLES AMÉNAGÉS accueille 3 CHAMBRES, un dégagement et une spacieuse salle de bains avec baignoire, douche et WC. TRAVERSANT, CALME et baigné de lumière, ce bien rare profite d’une vue imprenable et totalement dégagée sur la mairie et La Défense. Une cave complète l’ensemble. Un véritable coup de cœur, alliant cachet de l’ancien, fonctionnalité et emplacement premium en centre-ville.

Descriptif du bien

TRAD_PAMPERO_Caracteristique Valeurs
Code postal 92800
Surface habitable (m²) 102 m²
Surface loi Carrez (m²) 102 m²
Nombre de chambre(s) 3
Nombre de pièces 4
Etage 5
Nombre de niveaux 2
Ascenseur NON
TRAD_PAMPERO_Caracteristique Valeurs
Nb de salle de bains 1
Cuisine Séparée
Mode de chauffage Gaz de ville
Type de chauffage Radiateur
Format de chauffage Individuel
Cave OUI
Surface cave (m²) 4
Année de construction 1030
TRAD_PAMPERO_Caracteristique Valeurs
Copropriété OUI
Lot n° 13,18
nombre de lots 20
TRAD_PAMPERO_Caracteristique Valeurs
Prix de vente honoraires TTC inclus 650 000 €
Charges 153 €
Taxe foncière annuelle 1 005 €
DPE GES
  • Commerces et santé
  • Loisirs
  • Ecoles
  • Transports
  • Pratique
Ce bien vous est proposé par
Ce bien vous intéresse ?
Fieldset par défaut
Fieldset par défaut
Validation

* Champs obligatoires

Contacter l'agence
Validation
Les informations recueillies sur ce formulaire sont enregistrées dans un fichier informatisé par La Boite Immo agissant comme Sous-traitant du traitement pour la gestion de la clientèle/prospects de l'Agence / du Réseau qui reste Responsable du Traitement de vos Données personnelles. La base légale du traitement repose sur l'intérêt légitime de l'Agence / du Réseau. Elles sont conservées jusqu'à demande de suppression et sont destinées à l'Agence / au Réseau. Conformément à la loi « informatique et libertés », vous disposez des droits d’accès, de rectification, d’effacement, d’opposition, de limitation et de portabilité de vos données. Vous pouvez retirer votre consentement à tout moment en contactant directement l’Agence / Le Réseau. Consultez le site https://cnil.fr/fr pour plus d’informations sur vos droits. Si vous estimez, après avoir contacté l'Agence / le Réseau, que vos droits « Informatique et Libertés » ne sont pas respectés, vous pouvez adresser une réclamation à la CNIL. Nous vous informons de l’existence de la liste d'opposition au démarchage téléphonique « Bloctel », sur laquelle vous pouvez vous inscrire ici : https://www.bloctel.gouv.fr Dans le cadre de la protection des Données personnelles, nous vous invitons à ne pas inscrire de Données sensibles dans le champ de saisie libre.
Ce site est protégé par reCAPTCHA, les Politiques de Confidentialité et les Conditions d'Utilisation de Google s'appliquent.