Nous suivre
0
Réf : 1654
Vendu

TRÈS BEAU LOFT 3 PIÈCES QUARTIER JOURDAIN 85 M2

Paris (75020)
Nous consulter

A propos de ce bien

MÉTRO PYRÉNÉES LIGNE 11 À 5 MIN À PIED. QUARTIER JOURDAIN. RUE CALME PROCHE COMMERCES ET ESPACES VERTS.

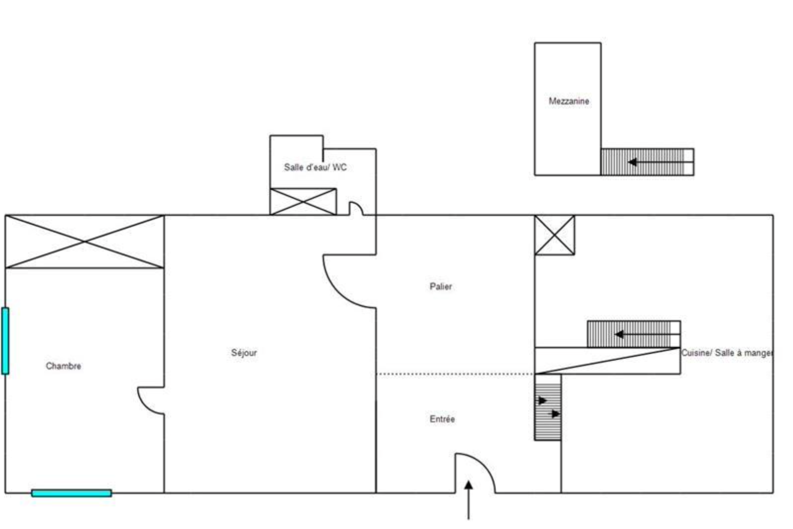
Un GRAND et CHARMANT LOFT EN RDC ( ancienne usine) À USAGE d'HABITATION DE 84,53 M2 ( 93,91 M2 AU SOL) avec une ENTRÉE avec RANGEMENTS, désservant et reliant DEUX ESPACES d'un coté: une GRANDE SALLE À MANGER ouvrant sur UNE CUSIINE ÉQUIPÉE, au dessus 1 MEZZANINE et de l'autre 1 GRAND SALON avec RANGEMENTS, 1 GRANDE CHAMBRE AVEC PLACARDS, 1 SALLE DE DOUCHE AVEC WC SANIBROYEUR. BELLE HAUTEUR SOUS PLAFONDS. GRANDES FENÊTRES. DEUX CAVES complètent ce lot. Idéal aussi pour UNE PROFESSION LIBÉRALE/ PIGNON SUR RUE ET ESPACES SÉPARÉS. ATELIER D'ARTISTE/ CO WORKING. CHAUFFAGE INDIVIDUEL ELECTRIQUE ET CHARGES DE COPROPRIÉTÉ de 128 euros/Mois. DEUXIÈME CHAMBRE POSSIBLE AVEC TRAVAUX. Beaucoup de possibilités pour cet espace modulable en fonction des besoins dans un quartier vivant et poétique de PARIS. À NE PAS MANQUER.

Descriptif du bien

TRAD_PAMPERO_Caracteristique Valeurs
Code postal 75020
Surface habitable (m²) 93,91 m²
Surface loi Carrez (m²) 84,53 m²
Nombre de chambre(s) 1
Nombre de pièces 3
TRAD_PAMPERO_Caracteristique Valeurs
Nb de salle d'eau 1
Cuisine Séparée
Type de cuisine Equipée
Mode de chauffage Electrique
Type de chauffage Radiateur
Format de chauffage Individuel
Année de construction 1910
TRAD_PAMPERO_Caracteristique Valeurs
Copropriété OUI
Lot n° 48
nombre de lots 97
TRAD_PAMPERO_Caracteristique Valeurs
Charges 124 €
Taxe foncière annuelle 1 024 €
  • Commerces et santé
  • Loisirs
  • Ecoles
  • Transports
  • Pratique
Ce bien vous est proposé par