Nous suivre
0
Réf : 503
Vendu

CHARME - FAMILIAL - TRAVERSANT

Paris (75020)
Nous consulter

A propos de ce bien

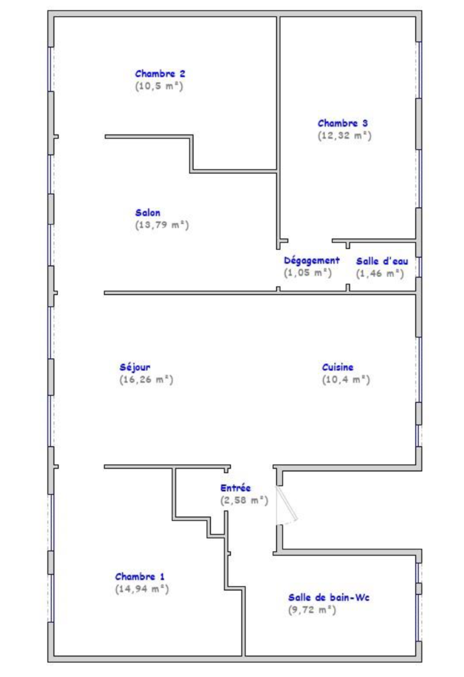
Métro ALEXANDRE DUMAS/ GAMBETTA. HAUT DE LA RUE DE BAGNOLET. Venez vite découvrir ce bel appartement familial TRAVERSANT de 96m2 au sol (93 loi carrez), plein de charme avec un beau PARQUET et très bien agencé avec une petite entrée avec un rangement pour manteaux et chaussures, une GRANDE SALLE À MANGER avec une grande CUISINE OUVERTE et dans une autre pièce un SALON. L'appartement dispose de 3 chambres dont une grande chambre avec un placard encastré de 4 portes, une chambre avec un placard encastré de 3 portes et une chambre avec 2 fenêtres sur cour. Vous trouverez également 1 Grande SALLE DE BAIN et 1 petite salle de douche. Une cave et une PLACE DE PARKING dans la COUR complètent ce bien. Chauffage individuel au gaz - Double vitrage. Appartement traversant avec un côté sur rue et l'autre sur cour. Une cave complète ce bien. Quartier très sympathique et animé, à deux pas de la médiathèque, des écoles, de restaurants, de deux marchés, du cinéma à Gambetta. Une pépite RARE dans le quartier à ne pas manquer .

Descriptif du bien

TRAD_PAMPERO_Caracteristique Valeurs
Code postal 75020
Surface habitable (m²) 96 m²
Surface loi Carrez (m²) 93 m²
Nombre de chambre(s) 3
Nombre de pièces 5
Etage 2
Ascenseur NON
TRAD_PAMPERO_Caracteristique Valeurs
Nb de salle de bains 1
Nb de salle d'eau 1
Cuisine Américaine
Mode de chauffage Gaz
Type de chauffage Radiateur
Format de chauffage Individuel
Interphone OUI
Balcon NON
Terrasse NON
Cave OUI
Nombre de parking 1
Surface cave (m²) 6
Exposition Nord-Ouest
Année de construction 1920
TRAD_PAMPERO_Caracteristique Valeurs
Copropriété OUI
Lot n° 4, 5,148,608
nombre de lots 4
Quote Part annuelle des charges 2 640 €
TRAD_PAMPERO_Caracteristique Valeurs
Charges 220 €
Taxe foncière annuelle 979 €
  • Commerces et santé
  • Loisirs
  • Ecoles
  • Transports
  • Pratique
Ce bien vous est proposé par