Nous suivre
0
Réf : 4052B
Exclusif

18e / LUMINEUX / MÉTRO / PARKING / 3 PIÈCES

Paris (75018)
699 000 €

A propos de ce bien

COUP DE CŒUR. PARIS 18e – À seulement 3 minutes à pied de Barbès-Rochechouart (lignes 2 et 4) et à 5 minutes du métro Anvers (ligne 2), à proximité des écoles, des commerces et des transports en commun.

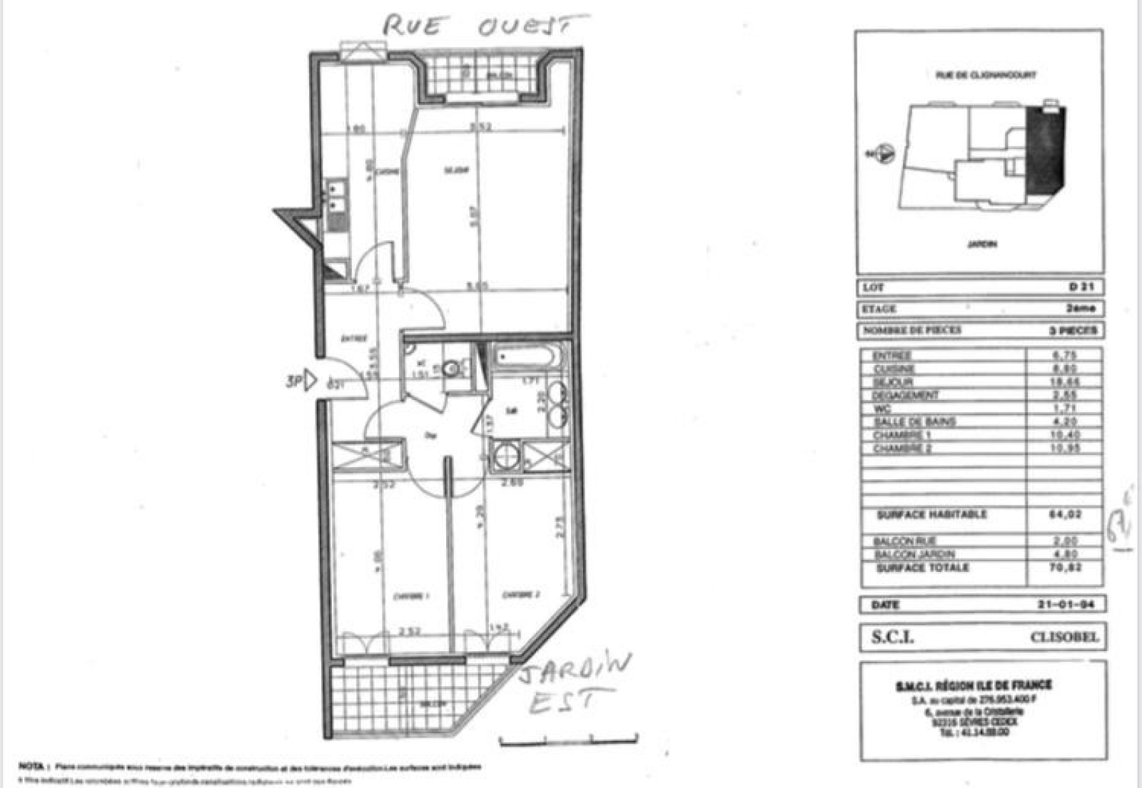
Le Cabinet BR Immobilier vous propose ce 3 PIÈCES TRAVERSANT de 67 m², LUMINEUX grâce à son exposition Est-Ouest, situé au 2e étage d’un immeuble RÉCENT.

Cet appartement est composé d’un VASTE SÉJOUR, d’une CUISINE AMÉNAGÉE ÉQUIPÉE, de DEUX CHAMBRES avec RANGEMENTS, d’une SALLE DE BAINS avec baignoire et double vasques, et de WC séparés. 2 balcons complètent ce bien, offrant un cadre de vie agréable et lumineux.

Une cave ainsi qu’une place de parking en sous-sol viennent compléter ce bien.

Charges mensuelles : 240 € ( eau froide, parking, parties communes, espaces verts, gardien )

Taxe foncière : 1 600 €

Rare sur le marché. Écoles, transports et tous commerces à proximité. Vie de quartier agréable dans un secteur recherché.

Descriptif du bien

TRAD_PAMPERO_Caracteristique Valeurs
Code postal 75018
Surface habitable (m²) 67 m²
Surface loi Carrez (m²) 67 m²
Nombre de chambre(s) 2
Nombre de pièces 3
Etage 2
Nombre de niveaux 1
Ascenseur OUI
TRAD_PAMPERO_Caracteristique Valeurs
Nb de salle de bains 1
Cuisine Américaine
Type de cuisine Equipée
Mode de chauffage Electrique
Type de chauffage Radiateur
Format de chauffage Individuel
Balcon OUI
Cave OUI
Surface cave (m²) 1
Exposition Est-Ouest
Année de construction 1994
TRAD_PAMPERO_Caracteristique Valeurs
Copropriété OUI
nombre de lots 108
TRAD_PAMPERO_Caracteristique Valeurs
Prix de vente 699 000 €
Les honoraires d'agence seront intégralement à la charge du vendeur  
Charges 240 €
Taxe foncière annuelle 1 600 €
DPE GES
  • Commerces et santé
  • Loisirs
  • Ecoles
  • Transports
  • Pratique
Ce bien vous est proposé par
Ce bien vous intéresse ?
Fieldset par défaut
Fieldset par défaut
Validation

* Champs obligatoires

Contacter l'agence
Validation
Les informations recueillies sur ce formulaire sont enregistrées dans un fichier informatisé par La Boite Immo agissant comme Sous-traitant du traitement pour la gestion de la clientèle/prospects de l'Agence / du Réseau qui reste Responsable du Traitement de vos Données personnelles. La base légale du traitement repose sur l'intérêt légitime de l'Agence / du Réseau. Elles sont conservées jusqu'à demande de suppression et sont destinées à l'Agence / au Réseau. Conformément à la loi « informatique et libertés », vous disposez des droits d’accès, de rectification, d’effacement, d’opposition, de limitation et de portabilité de vos données. Vous pouvez retirer votre consentement à tout moment en contactant directement l’Agence / Le Réseau. Consultez le site https://cnil.fr/fr pour plus d’informations sur vos droits. Si vous estimez, après avoir contacté l'Agence / le Réseau, que vos droits « Informatique et Libertés » ne sont pas respectés, vous pouvez adresser une réclamation à la CNIL. Nous vous informons de l’existence de la liste d'opposition au démarchage téléphonique « Bloctel », sur laquelle vous pouvez vous inscrire ici : https://www.bloctel.gouv.fr Dans le cadre de la protection des Données personnelles, nous vous invitons à ne pas inscrire de Données sensibles dans le champ de saisie libre.
Ce site est protégé par reCAPTCHA, les Politiques de Confidentialité et les Conditions d'Utilisation de Google s'appliquent.