Nous suivre
0
Réf : 2821B
Coup de coeur

APPARTEMENT RÉNOVÉ CLÉS EN MAIN

Paris (75007)
1 250 000 €

A propos de ce bien

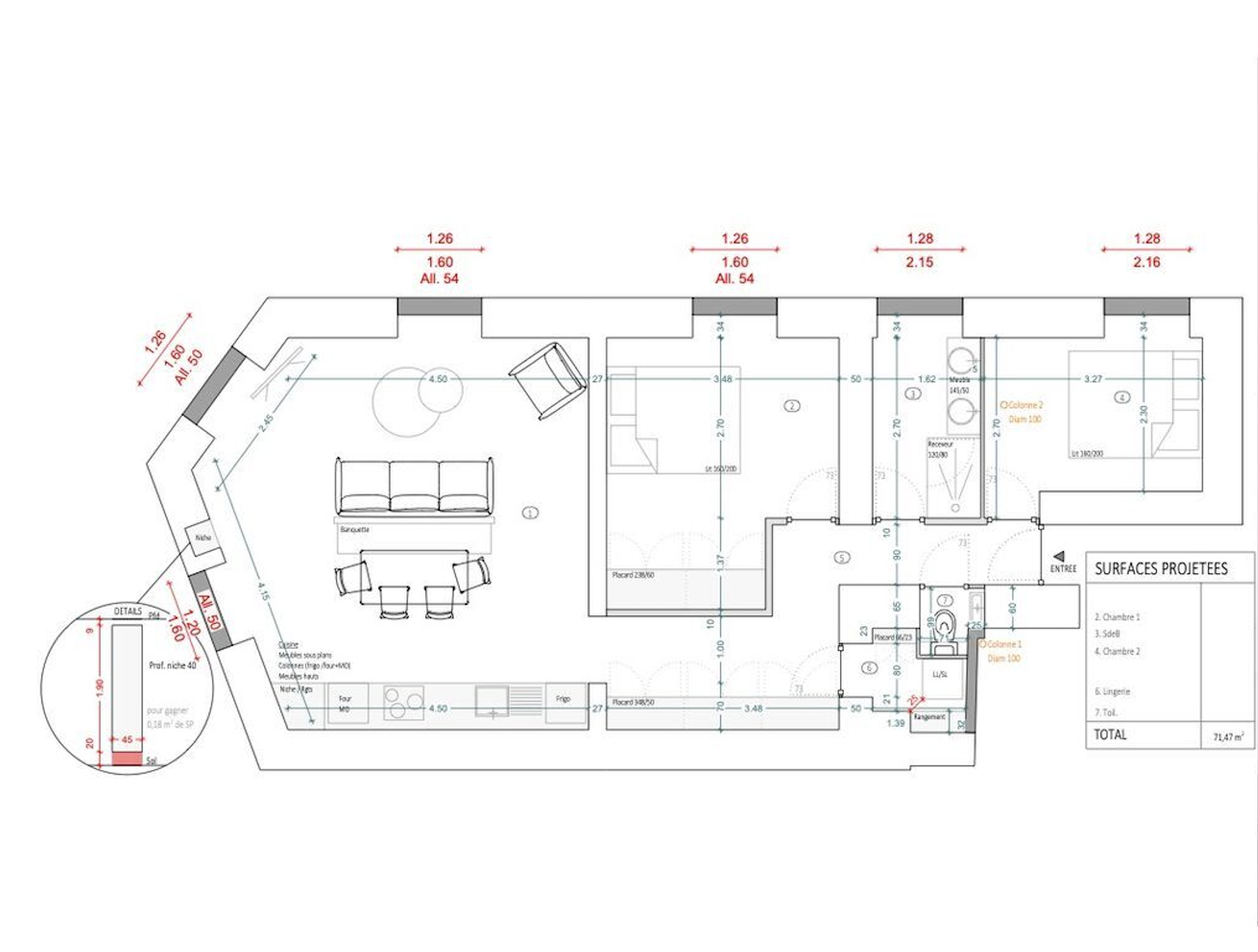
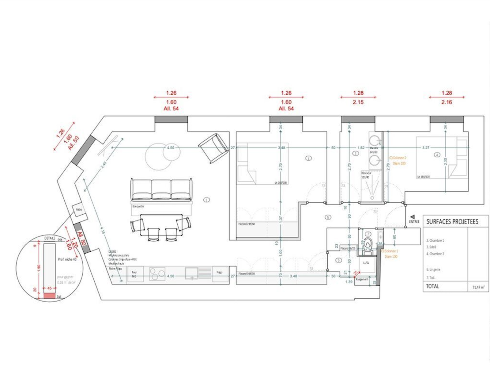
À DEUX PAS DU MÉTRO VANEAU - RUE DE SÈVRES - PROCHE DU BON MARCHÉ - Appartement REFAIT À NEUF par un ARCHITECTE D'INTÉRIEUR. Il comprend un séjour avec cuisine ouverte entièrement AMÉNAGÉE ET ÉQUIPÉE, une chambre parentale avec placards et dressing aménagés, une chambre d'enfant ou un bureau, une salle de douche, ainsi que des WC séparés avec un coin buanderie.
L'appartement est vendu CLÉS EN MAIN.
découvrir le bien

Descriptif du bien

TRAD_PAMPERO_Caracteristique Valeurs
Code postal 75007
Surface habitable (m²) 65 m²
Surface loi Carrez (m²) 65 m²
Nombre de chambre(s) 2
Nombre de pièces 3
Etage 1
TRAD_PAMPERO_Caracteristique Valeurs
Nb de salle d'eau 1
Cuisine Américaine
Type de cuisine Equipée
Mode de chauffage Gaz
Type de chauffage Autre
Format de chauffage Individuel
Interphone OUI
Surface cave (m²) 6
Exposition Sud
Année de construction 1946
Quartier duroc, Ecole militaire , Musée Rodin, Vaneau
TRAD_PAMPERO_Caracteristique Valeurs
Copropriété OUI
Lot n° 5
Quote Part annuelle des charges 1 600 €
TRAD_PAMPERO_Caracteristique Valeurs
Prix de vente 1 250 000 €
Les honoraires d'agence seront intégralement à la charge du vendeur  
Charges 134 €
DPE GES
  • Commerces et santé
  • Loisirs
  • Ecoles
  • Transports
  • Pratique
Ce bien vous est proposé par
Ce bien vous intéresse ?
Fieldset par défaut
Fieldset par défaut
Validation

* Champs obligatoires

Contacter l'agence
Validation
Les informations recueillies sur ce formulaire sont enregistrées dans un fichier informatisé par La Boite Immo agissant comme Sous-traitant du traitement pour la gestion de la clientèle/prospects de l'Agence / du Réseau qui reste Responsable du Traitement de vos Données personnelles.
La base légale du traitement repose sur l’intérêt légitime de l'Agence / du Réseau.
Elles sont conservées jusqu'à demande de suppression et sont destinées à l'Agence / au Réseau.
Conformément à la loi « informatique et libertés », vous pouvez exercer votre droit d'accès aux données vous concernant et les faire rectifier en contactant l'Agence / le Réseau.
Si vous estimez, après avoir contacté l'Agence / le Réseau, que vos droits « Informatique et Libertés » ne sont pas respectés, vous pouvez adresser une réclamation à la CNIL.
Nous vous informons de l’existence de la liste d'opposition au démarchage téléphonique « Bloctel », sur laquelle vous pouvez vous inscrire ici : https://www.bloctel.gouv.fr 
Dans le cadre de la protection des Données personnelles, nous vous invitons à ne pas inscrire de Données sensibles dans le champ de saisie libre
Ce site est protégé par reCAPTCHA, les Politiques de Confidentialité et les Conditions d'Utilisation de Google s'appliquent.