Nous suivre
0
Réf : 3434
Nouveauté

EMPLACEMENT - AGENCEMENT - CONFORTABLE

Paris (75013)
449 000 €

A propos de ce bien

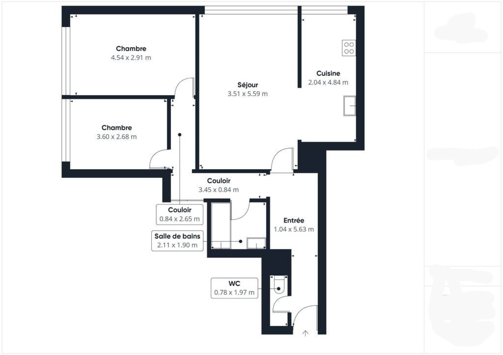
Au pied du métro OLYMPIADES (L.14) - VUE DEGAGÉE - ÉTAGE ÉLEVÉ - En plein cœur de la dalle piétonne des Olympiades, reconnue pour son emplacement privilégié à proximité immédiate des commerces, écoles et transports, découvrez ce LUMINEUX 3 pièces de 73 m², situé dans une résidence de standing.

BIEN AGENCÉ, celui-ci vous offre une entrée desservant un séjour lumineux avec cuisine semi-ouverte (possibilité d’ouverture complète), deux chambres, une salle de bain et un WC séparé.

Vous serez séduit par sa LUMINOSITÉ, son CALME ainsi que par son cadre de vie confortable au pied de toutes les commodités.

Gardien, sécurité, chauffage et eau chaude, local vélo (inclus dans les charges)

Une cave complète également ce bien et une place de parking est disponible en SUS du prix

À visiter sans tarder!

____________

Just steps from Olympiades metro (Line 14) – Open view – Upper floor

Located in the heart of the pedestrian plaza of Olympiades, a neighborhood renowned for its prime location near shops, schools, and public transport, this bright 2-bedroom apartment of 73 m² is situated in a well-maintained residence with concierge service.

The apartment is well laid out and offers an entrance hall leading to a bright living room with a semi-open kitchen (with the possibility of full opening), two bedrooms, a bathroom, a separate toilet, and a cellar.

You’ll be charmed by the apartment’s natural light, peaceful setting, unobstructed views, and efficient floor plan.
A comfortable and practical home, right next to all daily amenities.

Additional features:
– Concierge and secure building,
– Central heating and hot water included in the service charges,
– Bicycle storage,
– Cellar included,
– Underground parking space available at an additional cost.

A must-see!

découvrir le bien

Descriptif du bien

TRAD_PAMPERO_Caracteristique Valeurs
Code postal 75013
Surface habitable (m²) 73 m²
Surface loi Carrez (m²) 73 m²
Nombre de chambre(s) 2
Nombre de pièces 3
Etage 19
Ascenseur OUI
Vue Dégagée
TRAD_PAMPERO_Caracteristique Valeurs
Nb de salle de bains 1
Type de cuisine Equipée
Mode de chauffage Gaz de ville
Type de chauffage Radiateur
Format de chauffage Collectif
Cave OUI
Surface cave (m²) 6
Exposition Sud-Est
Année de construction 1972
TRAD_PAMPERO_Caracteristique Valeurs
Copropriété OUI
Lot n° 493
nombre de lots 298
Quote Part annuelle des charges 5 200 €
TRAD_PAMPERO_Caracteristique Valeurs
Prix de vente 449 000 €
Les honoraires d'agence seront intégralement à la charge du vendeur  
Charges 420 €
Taxe foncière annuelle 1 500 €
DPE GES
  • Commerces et santé
  • Loisirs
  • Ecoles
  • Transports
  • Pratique
Ce bien vous est proposé par
Ce bien vous intéresse ?
Fieldset par défaut
Fieldset par défaut
Validation

* Champs obligatoires

Contacter l'agence
Validation
Les informations recueillies sur ce formulaire sont enregistrées dans un fichier informatisé par La Boite Immo agissant comme Sous-traitant du traitement pour la gestion de la clientèle/prospects de l'Agence / du Réseau qui reste Responsable du Traitement de vos Données personnelles.
La base légale du traitement repose sur l’intérêt légitime de l'Agence / du Réseau.
Elles sont conservées jusqu'à demande de suppression et sont destinées à l'Agence / au Réseau.
Conformément à la loi « informatique et libertés », vous pouvez exercer votre droit d'accès aux données vous concernant et les faire rectifier en contactant l'Agence / le Réseau.
Si vous estimez, après avoir contacté l'Agence / le Réseau, que vos droits « Informatique et Libertés » ne sont pas respectés, vous pouvez adresser une réclamation à la CNIL.
Nous vous informons de l’existence de la liste d'opposition au démarchage téléphonique « Bloctel », sur laquelle vous pouvez vous inscrire ici : https://www.bloctel.gouv.fr 
Dans le cadre de la protection des Données personnelles, nous vous invitons à ne pas inscrire de Données sensibles dans le champ de saisie libre
Ce site est protégé par reCAPTCHA, les Politiques de Confidentialité et les Conditions d'Utilisation de Google s'appliquent.