Nous suivre
0
Réf : 3952H
Exclusif

MONTMARTRE / PLAN OPTIMAL / CALME ET LUMINEUX

Paris (75018)
618 500 €

A propos de ce bien

Situé rue Berthe, au cœur du quartier emblématique de Montmartre, à seulement 5 minutes du métro Abbesses (ligne 12), dans un environnement vivant et recherché, à proximité immédiate des commerces, restaurants et lieux typiques de la Butte.

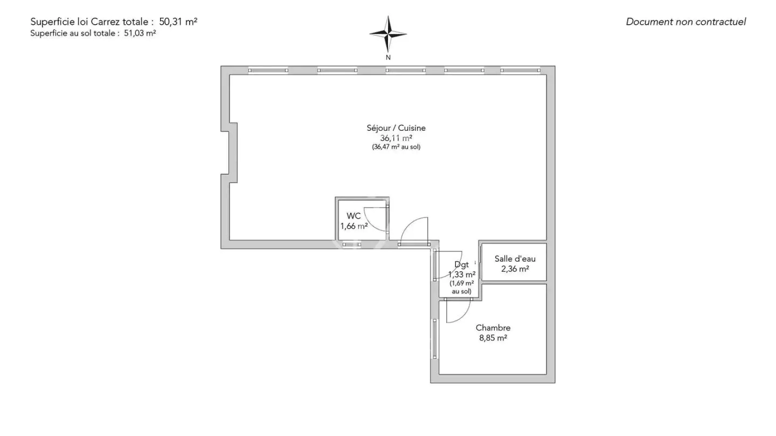
Le Cabinet BR Immobilier vous propose ce CHARMANT 2 pièces TRAVERSANT, situé au 2ème étage d’un immeuble ancien typique du quartier.

Il se compose d’un grand séjour dégagé avec cuisine américaine ÉQUIPÉE, bénéficiant d’une BELLE LUMINOSITÉ grâce à son exposition SUD et à ses nombreuses fenêtres, offrant un espace de vie convivial et spacieux, avec possibilité d’aménager une 2ÈME CHAMBRE dans la continuité du séjour.

Une chambre confortable exposée EST avec rangements intégrés, une salle d’eau, un WC séparé, ainsi qu’un dégagement complètent ce bien.

L’appartement bénéficie d’un PLAN OPTIMAL, d’un agréable volume de réception, avec parquet dans les pièces de vie.
DEUX CAVES complètent ce bien.

CALME ET LUMINEUX.

découvrir le bien

Descriptif du bien

TRAD_PAMPERO_Caracteristique Valeurs
Code postal 75018
Surface habitable (m²) 51 m²
Surface loi Carrez (m²) 50,31 m²
Nombre de chambre(s) 1
Nombre de pièces 2
Etage 2
TRAD_PAMPERO_Caracteristique Valeurs
Nb de salle d'eau 1
Cuisine Américaine
Type de cuisine Equipée
Mode de chauffage Electrique
Type de chauffage Radiateur
Format de chauffage Individuel
Cave OUI
Exposition Sud
Année de construction 1949
Quartier ABBESSES, MONTMARTRE, moulin rouge, Sacré coeur
TRAD_PAMPERO_Caracteristique Valeurs
Copropriété OUI
Lot n° 6
nombre de lots 23
statut du syndic pas de procédure en cours
TRAD_PAMPERO_Caracteristique Valeurs
Prix de vente 618 500 €
Les honoraires d'agence seront intégralement à la charge du vendeur  
Charges 208 €
Taxe foncière annuelle 920 €
DPE GES
  • Commerces et santé
  • Loisirs
  • Ecoles
  • Transports
  • Pratique
Ce bien vous est proposé par
Ce bien vous intéresse ?
Fieldset par défaut
Fieldset par défaut
Validation

* Champs obligatoires

Contacter l'agence
Validation
Les informations recueillies sur ce formulaire sont enregistrées dans un fichier informatisé par La Boite Immo agissant comme Sous-traitant du traitement pour la gestion de la clientèle/prospects de l'Agence / du Réseau qui reste Responsable du Traitement de vos Données personnelles. La base légale du traitement repose sur l'intérêt légitime de l'Agence / du Réseau. Elles sont conservées jusqu'à demande de suppression et sont destinées à l'Agence / au Réseau. Conformément à la loi « informatique et libertés », vous disposez des droits d’accès, de rectification, d’effacement, d’opposition, de limitation et de portabilité de vos données. Vous pouvez retirer votre consentement à tout moment en contactant directement l’Agence / Le Réseau. Consultez le site https://cnil.fr/fr pour plus d’informations sur vos droits. Si vous estimez, après avoir contacté l'Agence / le Réseau, que vos droits « Informatique et Libertés » ne sont pas respectés, vous pouvez adresser une réclamation à la CNIL. Nous vous informons de l’existence de la liste d'opposition au démarchage téléphonique « Bloctel », sur laquelle vous pouvez vous inscrire ici : https://www.bloctel.gouv.fr Dans le cadre de la protection des Données personnelles, nous vous invitons à ne pas inscrire de Données sensibles dans le champ de saisie libre.
Ce site est protégé par reCAPTCHA, les Politiques de Confidentialité et les Conditions d'Utilisation de Google s'appliquent.