Nous suivre
0
Réf : 4049A
Exclusif

COUP DE CŒUR / MONTPARNASSE / CALME SUR COUR FLEURIE

Paris (75014)
489 000 €

A propos de ce bien

COUP DE CŒUR. Au pied du métro Edgar Quinet (ligne 6) et Vavin (ligne 4), et à seulement 5 minutes à pied de GARE MONTPARNASSE.

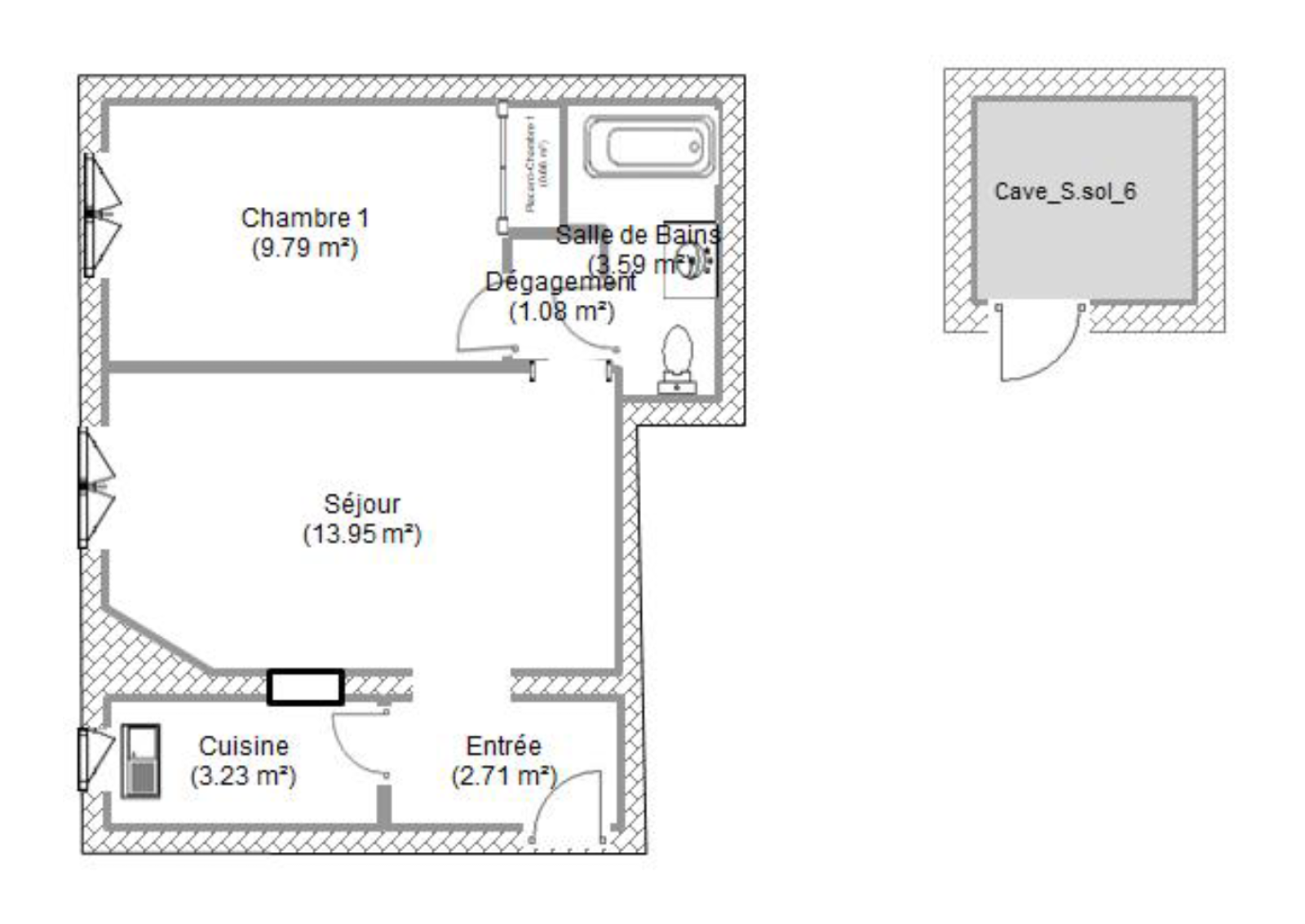
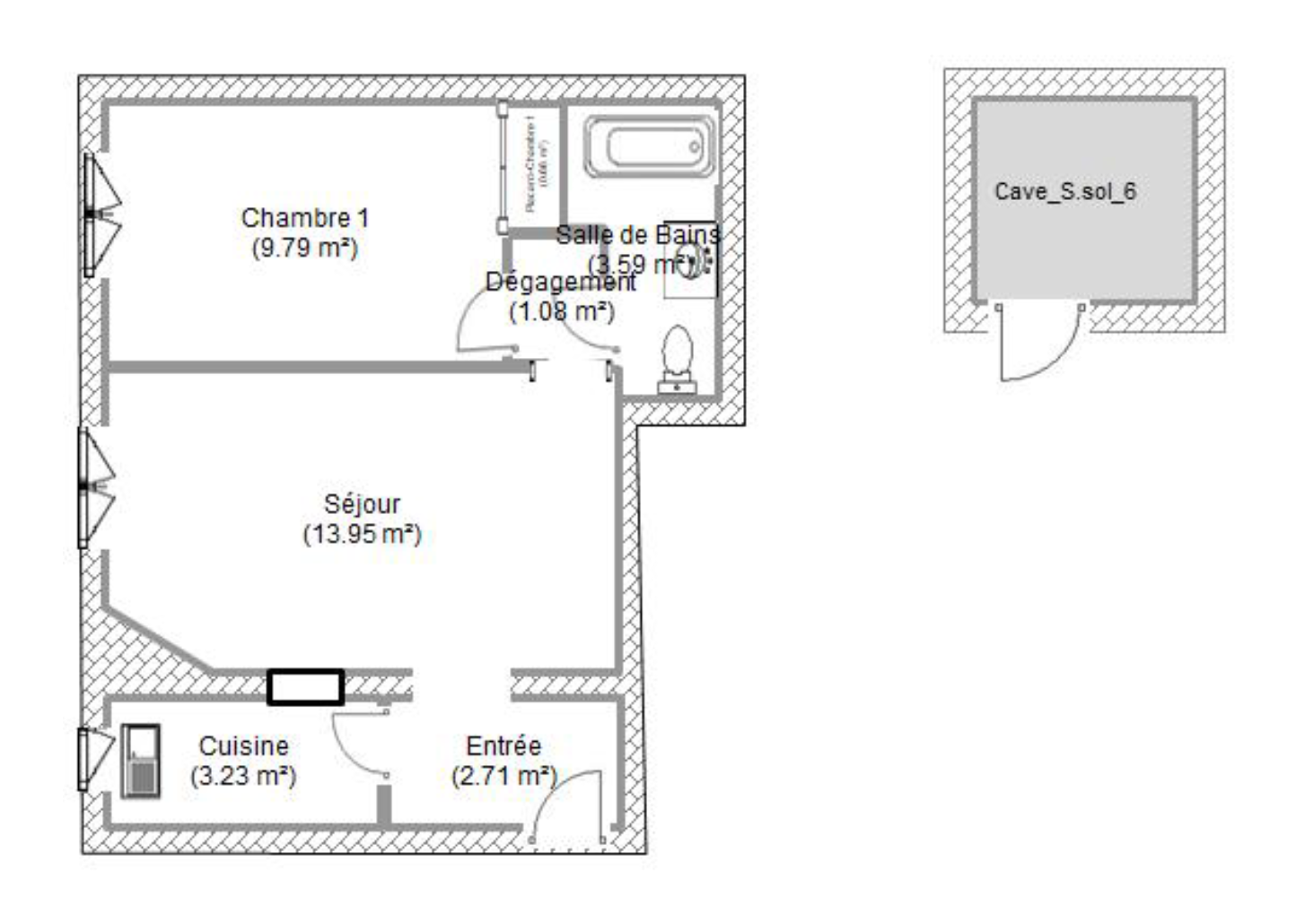
Le Cabinet BR Immobilier vous présente ce charmant appartement 2 pièces de 35 m², situé au 1er étage d’un immeuble ancien datant de 1900 avec ascenseur, donnant sur une agréable COUR FLEURIE.

Comprenant une entrée deservant un séjour, une cuisine séparée avec une ouverture, une chambre avec rangement, ainsi qu’une salle de bains avec WC.

AUCUNE PERTE D'ESPACE, appartement très bien conçu et confortable.

CALME avec vue sur cour, cet appartement offre un cadre de vie paisible tout en étant au cœur d’un quartier dynamique.

Une CAVE en sous-sol de 6,24 m² complète ce bien.

Appartement pouvant être vendu avec ou sans meubles.

Emplacement recherché, au pied de MONTPARNASSE, avec de nombreux commerces, transports et écoles à proximité.

découvrir le bien

Descriptif du bien

TRAD_PAMPERO_Caracteristique Valeurs
Code postal 75014
Surface habitable (m²) 35 m²
Surface loi Carrez (m²) 35 m²
Nombre de chambre(s) 1
Nombre de pièces 2
Etage 1
Ascenseur OUI
Vue Sur cour
TRAD_PAMPERO_Caracteristique Valeurs
Nb de salle de bains 1
Cuisine Séparée
Type de cuisine Equipée
Mode de chauffage Electrique
Type de chauffage Radiateur
Format de chauffage Individuel
Cave OUI
Surface cave (m²) 6
Année de construction 1900
Quartier Montparnasse
TRAD_PAMPERO_Caracteristique Valeurs
Copropriété OUI
Lot n° 6 et 35 cave
nombre de lots 108
Quote Part annuelle des charges 1 200 €
TRAD_PAMPERO_Caracteristique Valeurs
Prix de vente honoraires TTC inclus 489 000 €
Charges 120 €
Taxe foncière annuelle 800 €
DPE GES
  • Commerces et santé
  • Loisirs
  • Ecoles
  • Transports
  • Pratique
Ce bien vous est proposé par
Ce bien vous intéresse ?
Fieldset par défaut
Fieldset par défaut
Validation

* Champs obligatoires

Contacter l'agence
Validation
Les informations recueillies sur ce formulaire sont enregistrées dans un fichier informatisé par La Boite Immo agissant comme Sous-traitant du traitement pour la gestion de la clientèle/prospects de l'Agence / du Réseau qui reste Responsable du Traitement de vos Données personnelles. La base légale du traitement repose sur l'intérêt légitime de l'Agence / du Réseau. Elles sont conservées jusqu'à demande de suppression et sont destinées à l'Agence / au Réseau. Conformément à la loi « informatique et libertés », vous disposez des droits d’accès, de rectification, d’effacement, d’opposition, de limitation et de portabilité de vos données. Vous pouvez retirer votre consentement à tout moment en contactant directement l’Agence / Le Réseau. Consultez le site https://cnil.fr/fr pour plus d’informations sur vos droits. Si vous estimez, après avoir contacté l'Agence / le Réseau, que vos droits « Informatique et Libertés » ne sont pas respectés, vous pouvez adresser une réclamation à la CNIL. Nous vous informons de l’existence de la liste d'opposition au démarchage téléphonique « Bloctel », sur laquelle vous pouvez vous inscrire ici : https://www.bloctel.gouv.fr Dans le cadre de la protection des Données personnelles, nous vous invitons à ne pas inscrire de Données sensibles dans le champ de saisie libre.
Ce site est protégé par reCAPTCHA, les Politiques de Confidentialité et les Conditions d'Utilisation de Google s'appliquent.