Nous suivre
0
Réf : 3753C
Exclusif

DERNIER ÉTAGE / LUMINEUX / REFAIT À NEUF

Paris (75013)
540 000 €

A propos de ce bien

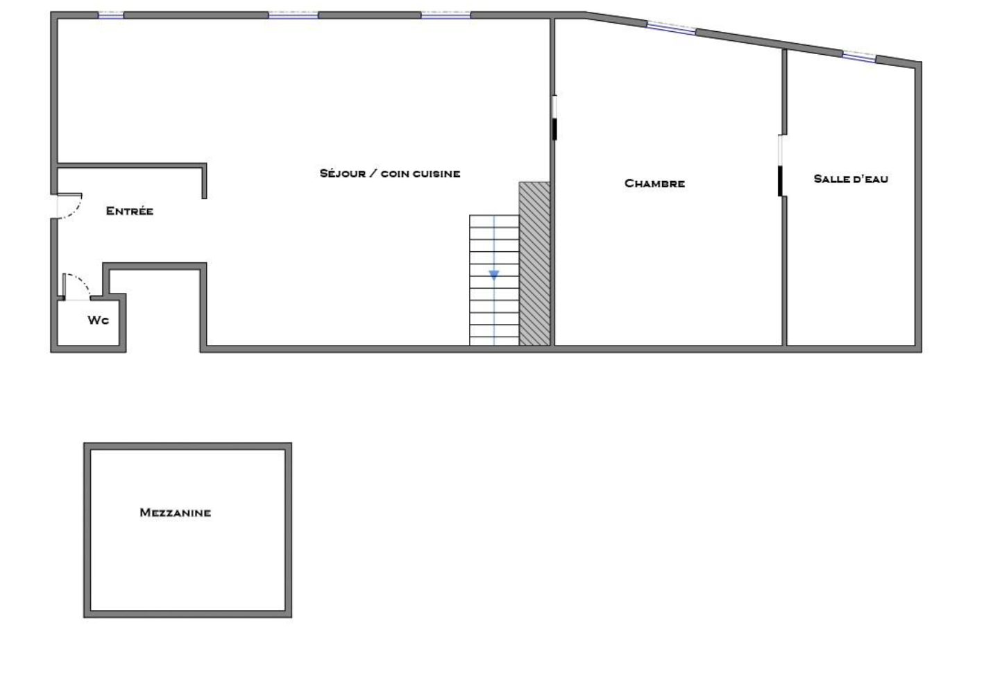
COUP DE COEUR – Situé rue du Chevaleret, à 5 minutes à pied de l'arrêt Bibliothèque François-Mitterrand (métro 14, RER C) et à 4 minutes à pied de l'arrêt Maryse Bastié (tram 3a). Le Cabinet BR Immobilier vous présente ce magnifique appartement de 2 pièces avec mezzanine, ENTIÈREMENT RÉNOVÉ, d’une superficie de 57,82 m² au sol (51,90 m² loi Carrez), situé au troisième et DERNIER ÉTAGE, sans ascenseur, d’une petite copropriété au sein d’un immeuble ancien.

Ce bien d’exception se compose d’une entrée avec rangements ouvrant sur un SPACIEUX séjour LUMINEUX (SUD-OUEST) avec une belle cuisine AMÉRICAINE EN QUARTZ (ensemble d’environ 27 m²). Un élégant escalier mène à une charmante mezzanine de 8 m², avec VELUX et mur en PIERRE D'ORIGINE, pouvant faire office de bureau, chambre d’appoint, dressing...

Dans un second temps, vous découvrirez une grande chambre de 15 m² avec RANGEMENTS, ainsi qu’une salle d’eau. Les WC séparés se situent dès l’entrée.

Vous serez séduits par ses prestations de qualité : cuisine en quartz, cheminée (artificielle), luminosité (exposition sud-ouest) et volumes agréables, ainsi que par sa localisation idéale, face à une rue calme, à proximité immédiate des transports (métro ligne 14, RER C), des commerces et restaurations .

Charges mensuelles: 157€ (eau froide, chauffage collectif, entretien parties communes, charges syndic)

Taxe foncière: 766€/an

découvrir le bien

Descriptif du bien

TRAD_PAMPERO_Caracteristique Valeurs
Code postal 75013
Surface habitable (m²) 57,82 m²
Surface loi Carrez (m²) 51,90 m²
Nombre de chambre(s) 1
Nombre de pièces 2
Etage 3
Vue Dégagée
TRAD_PAMPERO_Caracteristique Valeurs
Nb de salle d'eau 1
Cuisine Américaine
Type de cuisine Equipée
Mode de chauffage Autre
Type de chauffage Radiateur
Format de chauffage Collectif
Exposition Sud-Ouest
Année de construction 1910
TRAD_PAMPERO_Caracteristique Valeurs
Copropriété OUI
Lot n° 17,18,21
nombre de lots 46
Quote Part annuelle des charges 1 887 €
plan de sauvegarde NON
statut du syndic pas de procédure en cours
TRAD_PAMPERO_Caracteristique Valeurs
Prix de vente honoraires TTC inclus 540 000 €
Prix de vente honoraires TTC exclus 524 000 €
Honoraires TTC à la charge acquéreur 3,05 %
Charges 157 €
Taxe foncière annuelle 766 €
DPE GES
  • Commerces et santé
  • Loisirs
  • Ecoles
  • Transports
  • Pratique
Ce bien vous est proposé par
Ce bien vous intéresse ?
Fieldset par défaut
Fieldset par défaut
Validation

* Champs obligatoires

Contacter l'agence
Validation
Les informations recueillies sur ce formulaire sont enregistrées dans un fichier informatisé par La Boite Immo agissant comme Sous-traitant du traitement pour la gestion de la clientèle/prospects de l'Agence / du Réseau qui reste Responsable du Traitement de vos Données personnelles. La base légale du traitement repose sur l'intérêt légitime de l'Agence / du Réseau. Elles sont conservées jusqu'à demande de suppression et sont destinées à l'Agence / au Réseau. Conformément à la loi « informatique et libertés », vous disposez des droits d’accès, de rectification, d’effacement, d’opposition, de limitation et de portabilité de vos données. Vous pouvez retirer votre consentement à tout moment en contactant directement l’Agence / Le Réseau. Consultez le site https://cnil.fr/fr pour plus d’informations sur vos droits. Si vous estimez, après avoir contacté l'Agence / le Réseau, que vos droits « Informatique et Libertés » ne sont pas respectés, vous pouvez adresser une réclamation à la CNIL. Nous vous informons de l’existence de la liste d'opposition au démarchage téléphonique « Bloctel », sur laquelle vous pouvez vous inscrire ici : https://www.bloctel.gouv.fr Dans le cadre de la protection des Données personnelles, nous vous invitons à ne pas inscrire de Données sensibles dans le champ de saisie libre.
Ce site est protégé par reCAPTCHA, les Politiques de Confidentialité et les Conditions d'Utilisation de Google s'appliquent.