Nous suivre
0
Réf : 3412A
Exclusif

ÉTAGE ÉLEVÉ - LUMINEUX - INVESTISSEMENT LOCATIF

Paris (75013)
259 000 €

A propos de ce bien

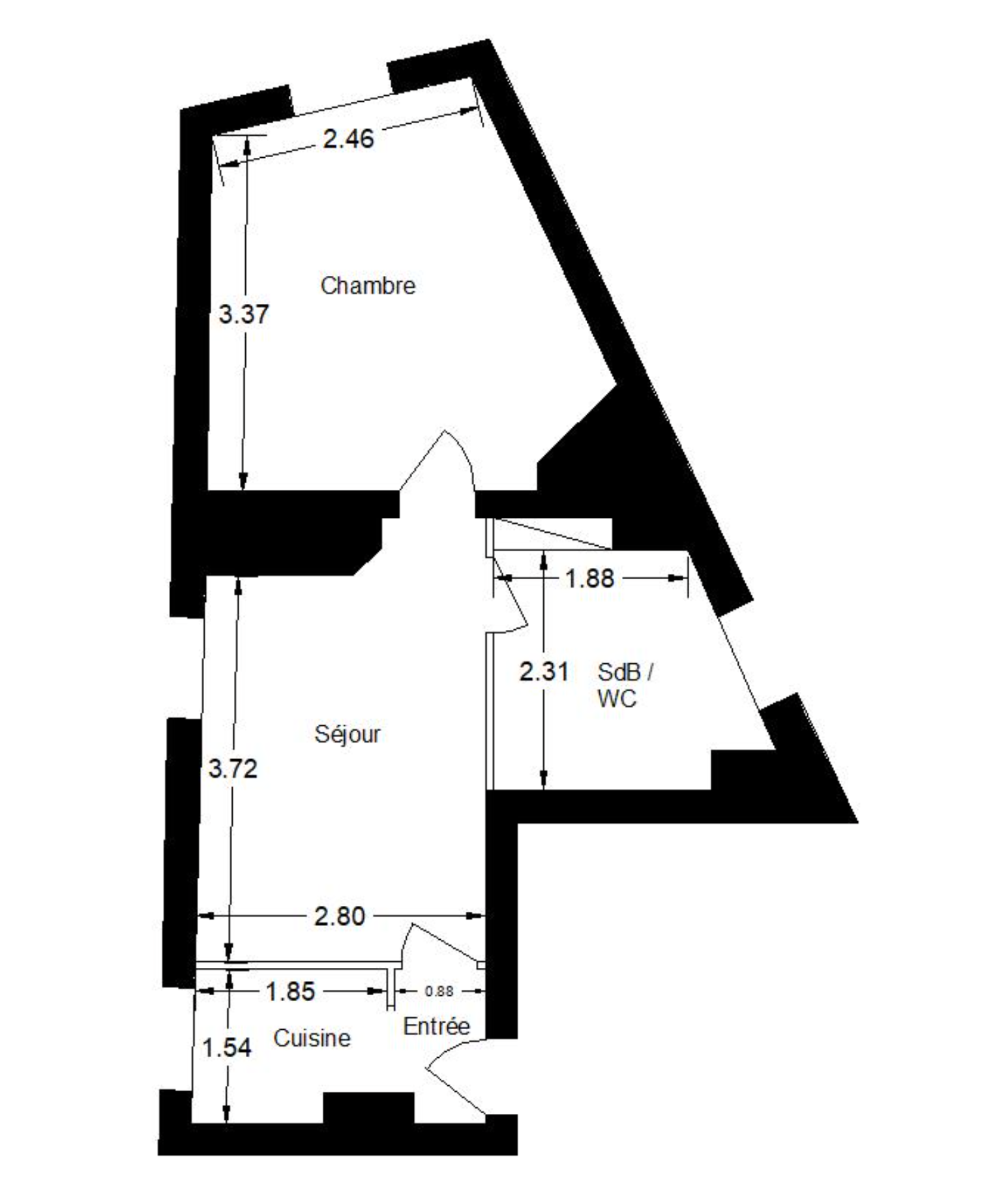
PARIS XIIIe - Le Cabinet BR Immobilier vous propose ce DEUX PIÈCES au 5e ÉTAGE sans ascenseur au sein d'une COPROPRIÉTÉ ANCIENNE de BONNE FACTURE datant de 1910. Il se compose : d'une ENTRÉE, d'un SÉJOUR exposé OUEST, d'une CUISINE SÉPARÉE (possibilité de l'ouvrir sur le séjour), d'une CHAMBRE confortable avec rangements, d'une SALLE DE BAINS avec WC. Cet appartement est LUMINEUX et possède un FORT POTENTIEL. Des travaux sont à prévoir. Proximité immédiate des commerces et transports. Idéal investisseurs ou primo-accédants. VENDU VIDE (ou LOUÉ 890 euros / mois). Visite virtuelle disponble sur demande. À visiter sans tarder!

découvrir le bien

Descriptif du bien

TRAD_PAMPERO_Caracteristique Valeurs
Code postal 75013
Surface habitable (m²) 32,40 m²
Surface loi Carrez (m²) 32,14 m²
Nombre de chambre(s) 1
Nombre de pièces 2
Etage 5
Ascenseur NON
Vue Dégagée
TRAD_PAMPERO_Caracteristique Valeurs
Nb de salle de bains 1
Cuisine Séparée
Type de cuisine SEMI-EQUIPEE
Mode de chauffage Electrique
Type de chauffage Convecteur
Format de chauffage Individuel
Balcon NON
Cave NON
Exposition Ouest
Année de construction 1930
TRAD_PAMPERO_Caracteristique Valeurs
Copropriété OUI
Lot n° 15
nombre de lots 20
Quote Part annuelle des charges 1 600 €
statut du syndic pas de procédure en cours
TRAD_PAMPERO_Caracteristique Valeurs
Prix de vente 259 000 €
Les honoraires d'agence seront intégralement à la charge du vendeur  
Charges 133 €
Taxe foncière annuelle 450 €
DPE GES
  • Commerces et santé
  • Loisirs
  • Ecoles
  • Transports
  • Pratique
Ce bien vous est proposé par
Ce bien vous intéresse ?
Fieldset par défaut
Fieldset par défaut
Validation

* Champs obligatoires

Contacter l'agence
Validation
Les informations recueillies sur ce formulaire sont enregistrées dans un fichier informatisé par La Boite Immo agissant comme Sous-traitant du traitement pour la gestion de la clientèle/prospects de l'Agence / du Réseau qui reste Responsable du Traitement de vos Données personnelles.
La base légale du traitement repose sur l’intérêt légitime de l'Agence / du Réseau.
Elles sont conservées jusqu'à demande de suppression et sont destinées à l'Agence / au Réseau.
Conformément à la loi « informatique et libertés », vous pouvez exercer votre droit d'accès aux données vous concernant et les faire rectifier en contactant l'Agence / le Réseau.
Si vous estimez, après avoir contacté l'Agence / le Réseau, que vos droits « Informatique et Libertés » ne sont pas respectés, vous pouvez adresser une réclamation à la CNIL.
Nous vous informons de l’existence de la liste d'opposition au démarchage téléphonique « Bloctel », sur laquelle vous pouvez vous inscrire ici : https://www.bloctel.gouv.fr 
Dans le cadre de la protection des Données personnelles, nous vous invitons à ne pas inscrire de Données sensibles dans le champ de saisie libre
Ce site est protégé par reCAPTCHA, les Politiques de Confidentialité et les Conditions d'Utilisation de Google s'appliquent.