Nous suivre
0
Réf : 3552AB
Coup de coeur

Patio/Lumineux/Prestige/Calme/Loft

Paris (75018)
1 550 000 €

A propos de ce bien

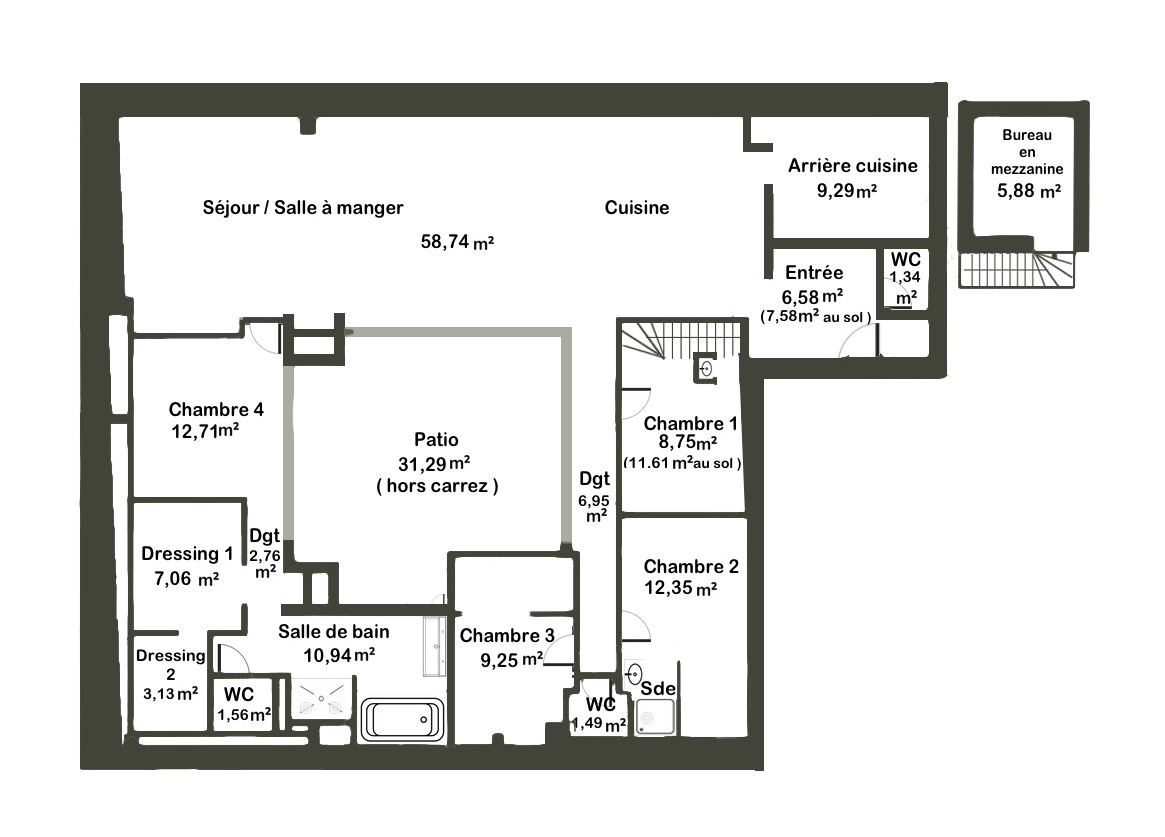
Rareté : BUREAUX avec commercialité vendu LIBRE avec PATIO au coeur du 18e village

Idéalement situé à la lisière de Montmartre, dans une rue calme à proximité immédiate du boulevard, le Cabinet BR IMMOBILIER vous propose ces bureaux de 158,78 m2 Carrez, bénéficiant d’une commercialité autorisée et d’un patio privatif de 31,29 m2 Carrez, conçu comme un véritable jardin intérieur.

Cet espace offre un cadre de travail exceptionnel, alliant design contemporain, volumes généreux, luminosité naturelle et calme absolu.

Les bureaux se composent d’un vaste open space de 58,74 m2, idéal pour accueillir un espace d’accueil, un coworking ou une salle de réunion conviviale. Une cuisine américaine avec ilot central et une buanderie attenante complètent cet espace.

Un bureau en mezzanine surplombe la pièce principale, parfait pour un espace de direction ou de création.
L’ensemble comprend également quatre grands bureaux ou salles de réunion, tous ouverts sur le patio, ainsi que plusieurs salles d’eau et trois WC séparés. De nombreux rangements et dressings intégrés assurent un confort optimal au quotidien.

  • Climatisation réversible

  • Chauffage électrique à modules rayonnants

  • Charges de copropriété : 1 400 € / trimestre

  • DPE : C

Un bien rare sur le secteur, idéal pour cabinet professionnel, société de production, agence de communication ou bureaux de direction.

PROJECTION

Le Cabinet BR IMMOBILIER reste à votre disposition pour tout renseignement complémentaire et pour organiser une visite.

Visite virtuelle disponible sur demande.

découvrir le bien

Descriptif du bien

TRAD_PAMPERO_Caracteristique Valeurs
Type de transac Bureaux
Code postal 75018
Surface habitable (m²) 191,93 m²
Surface loi Carrez (m²) 190,07 m²
Nombre de chambre(s) 4
Nombre de pièces 5
Superficie (m²) 191.93
TRAD_PAMPERO_Caracteristique Valeurs
Nb de salle de bains 1
Nb de salle d'eau 2
Cuisine Américaine
Type de cuisine Equipée
Mode de chauffage Electrique
Type de chauffage Panneaux rayonnant
Format de chauffage Individuel
Interphone OUI
Cave NON
Année de construction 1870
TRAD_PAMPERO_Caracteristique Valeurs
Copropriété OUI
Lot n° 58
nombre de lots 60
Quote Part annuelle des charges 5 736 €
statut du syndic pas de procédure en cours
TRAD_PAMPERO_Caracteristique Valeurs
Prix de vente honoraires inclus 1 550 000 €
Charges 478 €
Chiffre d'affaires
EBE
TRAD_PAMPERO_Caracteristique Valeurs
type d'activité - Divers
DPE GES
  • Commerces et santé
  • Loisirs
  • Ecoles
  • Transports
  • Pratique
Ce bien vous est proposé par
Ce bien vous intéresse ?
Fieldset par défaut
Fieldset par défaut
Validation

* Champs obligatoires

Contacter l'agence
Validation
Les informations recueillies sur ce formulaire sont enregistrées dans un fichier informatisé par La Boite Immo agissant comme Sous-traitant du traitement pour la gestion de la clientèle/prospects de l'Agence / du Réseau qui reste Responsable du Traitement de vos Données personnelles.
La base légale du traitement repose sur l’intérêt légitime de l'Agence / du Réseau.
Elles sont conservées jusqu'à demande de suppression et sont destinées à l'Agence / au Réseau.
Conformément à la loi « informatique et libertés », vous pouvez exercer votre droit d'accès aux données vous concernant et les faire rectifier en contactant l'Agence / le Réseau.
Si vous estimez, après avoir contacté l'Agence / le Réseau, que vos droits « Informatique et Libertés » ne sont pas respectés, vous pouvez adresser une réclamation à la CNIL.
Nous vous informons de l’existence de la liste d'opposition au démarchage téléphonique « Bloctel », sur laquelle vous pouvez vous inscrire ici : https://www.bloctel.gouv.fr 
Dans le cadre de la protection des Données personnelles, nous vous invitons à ne pas inscrire de Données sensibles dans le champ de saisie libre
Ce site est protégé par reCAPTCHA, les Politiques de Confidentialité et les Conditions d'Utilisation de Google s'appliquent.
Ces biens peuvent vous intéresser