Nous suivre
0
Réf : 4048
Exclusif

LOCATION BUREAUX LOFT DE 206m2 LUMINEUX et au CALME ABSOLU avec STUDIO d’ENREGISTREMENT

Paris (75010)
11 000 € / mois HT - HC*

A propos de ce bien

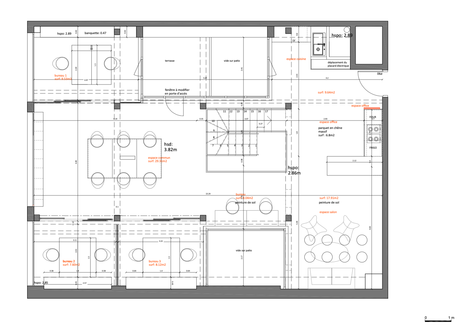
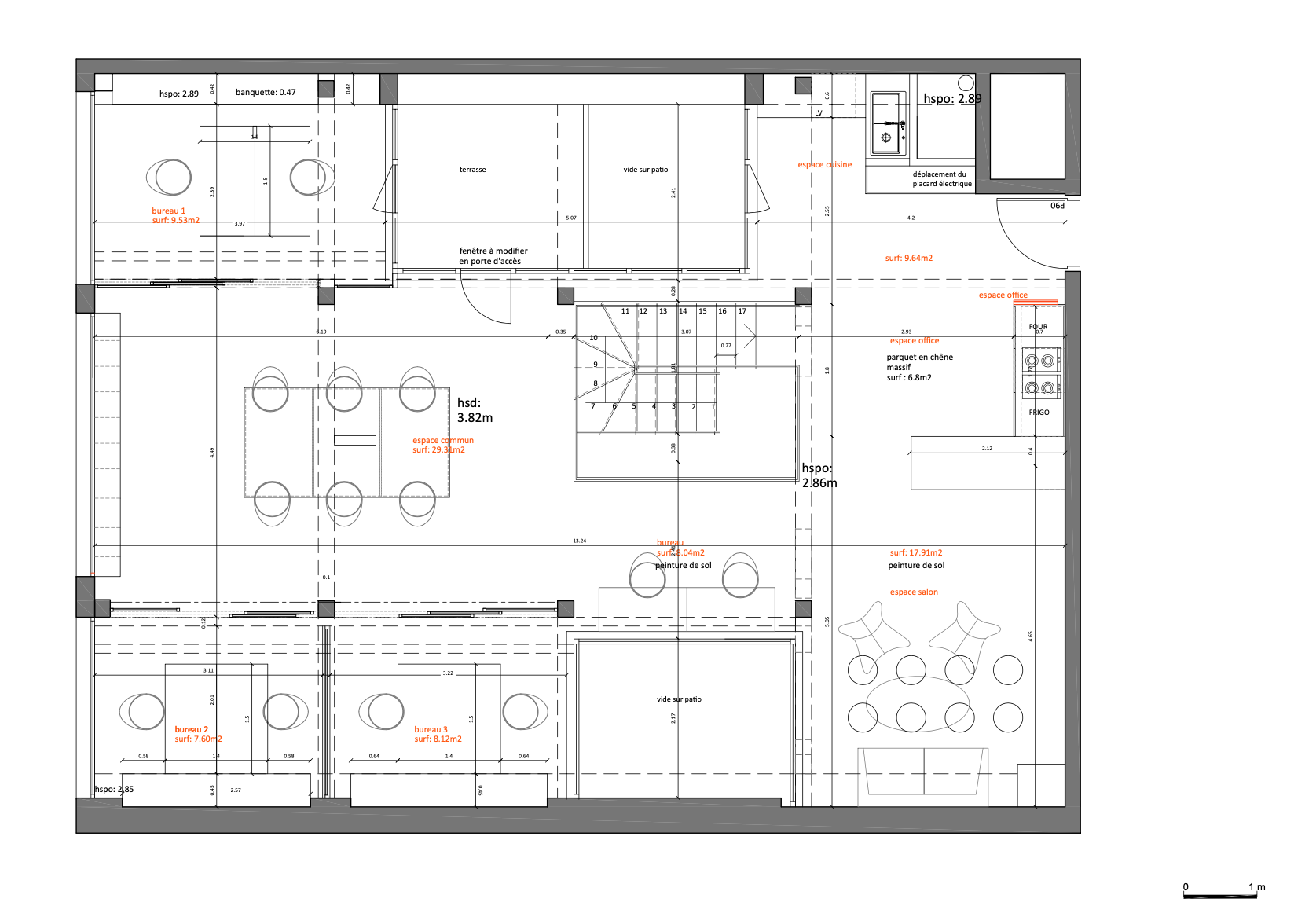
À DEUX PAS du métro BONNE NOUVELLE (rue d'Enghien), au FOND d’une COUR à l’abri de toute agitation, le Cabinet BR Immobilier vous invite à décrouvrir un ESPACE DE TRAVAIL rare de 206 m², à l’architecture soignée et résolument inspirante. Dès le PREMIER NIVEAU, profitez d’un GRAND PLATEAU baigné de lumière naturelle, sublimé par de SUPERBES VERRIÈRES dans un esprit ATELIER LOFT. Ce niveau se compose d'un ESPACE CUISINE convivial, d'un COIN SALON chaleureux, de TROIS BUREAUX fermés, d'un VASTE OPEN SPACE, et d'un PATIO extérieur agréable
Un élégant ESCALIER OUVERT mène au NIVEAU INFÉRIEUR, pensé pour des usages professionnels exigeants.
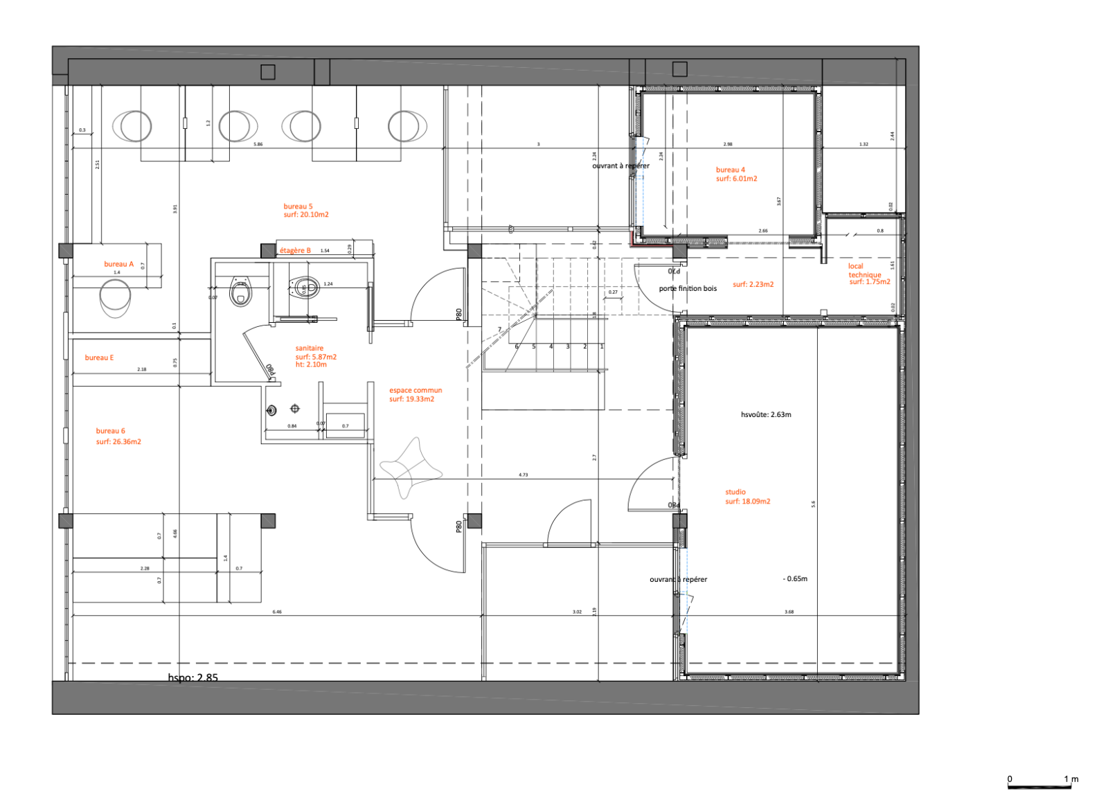
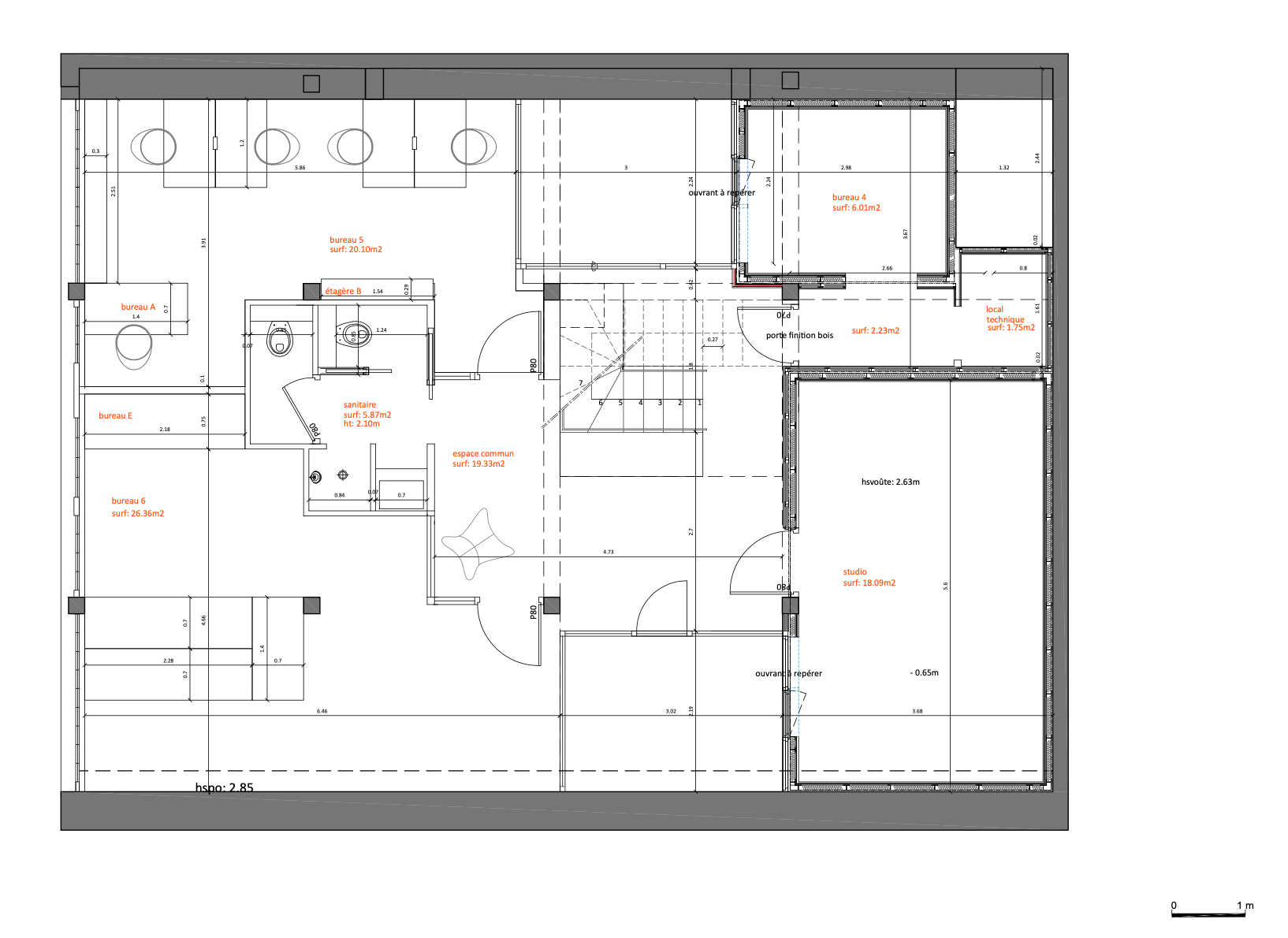
Ce SECOND ESPACE distribue un STUDIO D'ENREGISTREMENT insonorisé de 18 m², une CABINE insonorisée de 6 m², un espace technique/local dédié, DEUX BUREAUX fermés (capacité 6 à 7 postes pour l’un, 4 à 5 pour l’autre), et DEUX PATIOS supplémentaires
L’ensemble, conçu par une ARCHITECTE TALENTUEUSE, offre une atmosphère à la fois créative, confidentielle et fonctionnelle.
Ces bureaux sont particulièrement adaptés aux entreprises des secteurs audiovisuel, de production, musique ou création, mais peuvent également accueillir un showroom haut de gamme ou toute activité recherchant un lieu de caractère.
Le studio constitue un véritable atout pour des usages variés : enregistrement, post-production, projections privées ou projets confidentiels.
LES PLUS :
Calme exceptionnel (fond de cour)
Très belle luminosité
Volumes et cachet atypiques
Espaces extérieurs (patios)
Configuration modulable.
HYPER CENTRAL et à 5 minutes à pied des stations de métro BONNE NOUVELLE, Château d’Eau et Strasbourg Saint-Denis. Nombreux BARS et RESTAURANTS à proximité immédiate.
LOYER MENSUEL 11 000 HT/HC
BAIL de 3/6/9 ANS.
Frais d’agence 30% du loyer annuel HT.

Descriptif du bien

TRAD_PAMPERO_Caracteristique Valeurs
Type de transac Bureaux
Code postal 75010
Surface habitable (m²) 206 m²
Nombre de niveaux 2
Vue Sans vis à vis
Superficie (m²) 206
TRAD_PAMPERO_Caracteristique Valeurs
Mode de chauffage Gaz
Type de chauffage Au sol
Format de chauffage Individuel
Quartier Bonne Nouvelle , Gare de l'Est, Strasbourg Saint-Denis
TRAD_PAMPERO_Caracteristique Valeurs
Copropriété OUI
TRAD_PAMPERO_Caracteristique Valeurs
Loyer HT 11 000 € / mois
Honoraires HT charge locataire 39 600 €
Dont état des lieux Non renseigné
Dépot de garantie 33 000 €
Charges locatives HT (provision donnant lieu à régularisation annuelle) 2 800 €
TRAD_PAMPERO_Caracteristique Valeurs
type d'activité - Divers
DPE GES
  • Commerces et santé
  • Loisirs
  • Ecoles
  • Transports
  • Pratique
Ce bien vous est proposé par
Ce bien vous intéresse ?
Fieldset par défaut
Fieldset par défaut
Validation

* Champs obligatoires

Contacter l'agence
Validation
Les informations recueillies sur ce formulaire sont enregistrées dans un fichier informatisé par La Boite Immo agissant comme Sous-traitant du traitement pour la gestion de la clientèle/prospects de l'Agence / du Réseau qui reste Responsable du Traitement de vos Données personnelles. La base légale du traitement repose sur l'intérêt légitime de l'Agence / du Réseau. Elles sont conservées jusqu'à demande de suppression et sont destinées à l'Agence / au Réseau. Conformément à la loi « informatique et libertés », vous disposez des droits d’accès, de rectification, d’effacement, d’opposition, de limitation et de portabilité de vos données. Vous pouvez retirer votre consentement à tout moment en contactant directement l’Agence / Le Réseau. Consultez le site https://cnil.fr/fr pour plus d’informations sur vos droits. Si vous estimez, après avoir contacté l'Agence / le Réseau, que vos droits « Informatique et Libertés » ne sont pas respectés, vous pouvez adresser une réclamation à la CNIL. Nous vous informons de l’existence de la liste d'opposition au démarchage téléphonique « Bloctel », sur laquelle vous pouvez vous inscrire ici : https://www.bloctel.gouv.fr Dans le cadre de la protection des Données personnelles, nous vous invitons à ne pas inscrire de Données sensibles dans le champ de saisie libre.
Ce site est protégé par reCAPTCHA, les Politiques de Confidentialité et les Conditions d'Utilisation de Google s'appliquent.

* HC : Hors charges

Ces biens peuvent vous intéresser